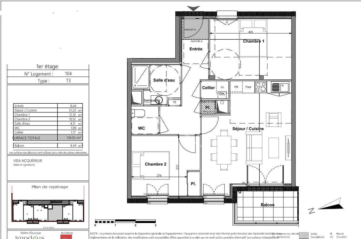
En vente Appartement 3 pièces 59 m2
| Ville | SAINT NAZAIRE |
| Code postal | 44600 |
| Type de bien | Appartement |
| Surface | 59 m2 |
| Nombre de pièces | 3 pièces |
| Prix | 249 000,00 € |
| Informations sur l'annonceur | |
|---|---|
| Annonce de professionnel |
|
| Agence | L'Adresse Carquefou Voir toutes les annonces |
| Adresse | 2 rue Harrouys |
| 44470 CARQUEFOU | |
| Téléphone Fixe | 0240527575 |
Description
A vendre, charmant appartement de type 3 de 59 m² avec orientation OUEST. Profitez de la lumière naturelle sur le balcon. L'intérieur offre un séjour/cuisine convivial de 21,22 m², deux chambres confortables de 10,12 m² et 12,10 m², ainsi qu'une salle d'eau avec WC séparé. Inclut une place de parking pour plus de praticité au quotidien. Situé au Coeur de saint Nazaire, cet appartement offre un accès facile aux commodités locales, aux écoles et aux transports en commun. Label Energie RT 2012 Prix: 249 000 euros TTC (+ frais notaire réduits 2.5%) Prix direct promoteur REF: 32970Gar104 "Les informations sur les risques auxquels ce bien est exposé sont disponibles sur le site Géorisques : www.georisques.gouv.fr" Copropriété de 19 lots - dont 19 lots habitation.