En vente Appartement 3 pièces 84 m2
| Ville | Vence |
| Code postal | 06140 |
| Type de bien | Appartement |
| Surface | 84 m2 |
| Nombre de pièces | 3 pièces |
| Prix | 445 000,00 € |
| Informations sur l'annonceur | |
|---|---|
| Annonce de professionnel |
|
| Agence | AAA Riviera Voir toutes les annonces |
| Adresse | 12, rue des Belges |
| 06400 Cannes | |
| Négociateur | Véronique RUGLAND 06140 Vence |
| Téléphone | +33676700377 |
Description
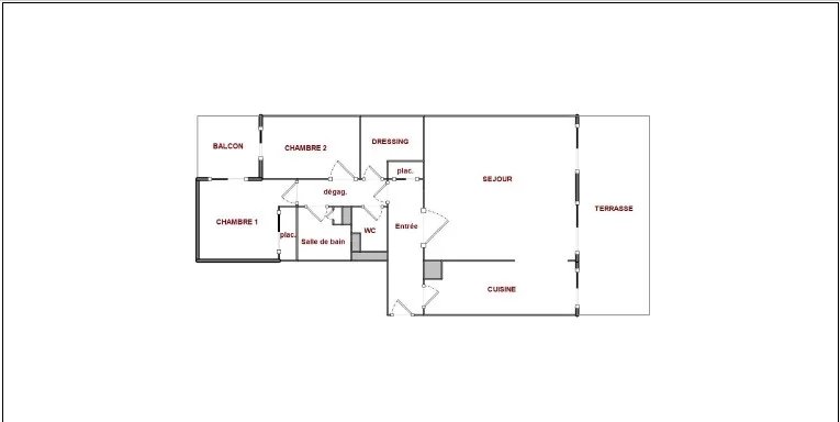
VENDU - Exclusivité - Proche du centre-ville de Vence, ce grand 3 pièces au Rez de chaussée surélevé d'un petit immeuble se situe dans une Résidence fermée, avec piscine. Belle vue dégagée et aperçu mer. Aucun vis-à-vis et au calme absolu L'appartement, traversant et très lumineux, bénéficie d'une belle terrasse de 29m² desservant le grand séjour de 32m² et la cuisine équipée de 11m². L'accès à cette terrasse se fait par 3 baies vitrées coulissantes. L'espace nuit est composé de 2 chambres donnant sur un balcon d'angle, d'une salle de bains, d'un toilette invités et d'un dressing. Climatisation dans les chambres. La piscine de la résidence est implantée au milieu d'espaces verts parfaitement entretenus. Une place de parking en sous sol et une cave complètent ce bien. Bien en copropriété comprenant 89 lots principaux. Quote-part des charges 363 euros/mois, eau chaude et froide comprises. Aucune procédure en cours connue. Les informations sur les risques auxquels ce bien est exposé sont disponibles sur le site Géorisques : georisques.gouv.fr *** VENCE *** Située sur une colline dans l'arrière-pays à l'ouest de Nice, à environ 10 km de la côte, la charmante ville de Vence est recherchée comme point de départ de diverses expériences nature en plus des expériences culturelles et gastronomiques. La "rue gastronomique" de Vence a un caractère particulier et une grande qualité. Comme tant d'autres villes de la Côte d'Azur, Vence possède également une partie ancienne bien conservée du Moyen Âge avec des ruelles et des rues étroites. Les nombreux trésors et monuments historiques de Vence valent le détour. Vous y trouverez un château-tour du XIIIème siècle et de nombreuses belles fontaines dont la plus célèbre, la Fontaine du Peyra, est classée "monument historique". Vence abrite par ailleurs la plus petite cathédrale de France, construite sur un ancien temple roman, et une église Carolingienne où vous trouverez entre autres, statues en bois et mosaïques de Marc Chagall, tandis qu'Henri Matisse décorait la plus célèbre des nombreuses chapelles de Vence ; la belle et très particulière Chapelle de la Roseraie. Le musée de la Fondation Maegt situé dans la commune voisine de Saint Paul de Vence attire les amateurs d'art du monde entier.
Les photos du bien
Les diagnostics
| Bâtiment économe |
|---|
| |
| 83 |
| |
| |
| |
| |
| |
| Bâtiment énergivore |
| en kWh.an/m².an |
| Faible émission de GES* |
|---|
| 1 |
| |
| |
| |
| |
| |
| |
| Forte émission de GES* |
| * Gaz à effet de serre en KgeqCO2/m².an |
Les informations complémentaires
VENDU - Exclusivité - Vence - 3P de 83m² avec 30m² terrasse, vue