En vente Maison 5 pièces 100 m2

Ville PERCY EN NORMANDIE
Code postal 50410
Type de bien Maison
Surface 100 m2
Nombre de pièces 5 pièces
Prix 160 000,00 €
Informations sur l'annonceur
Annonce de professionnel
Agence Delamarche Immobilier
Voir toutes les annonces
Adresse 5 Rue De L Hotel Saint Denis
50450 Gavray
Téléphone Fixe 0233614040
Portable 0689496681

Description

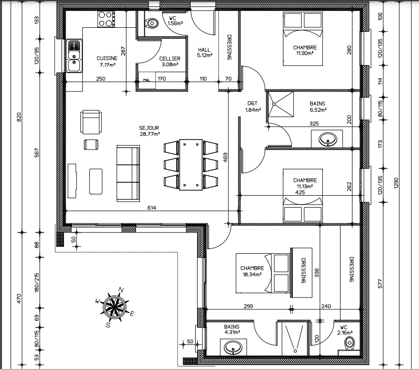
Delamarche immobilier vous propose à la vente une maison passive récente en ossature bois à finir d'aménager. Amoureux de la nature, la réalisation de cette maison à pour but le respect du paysage et de l'environnement. Descriptif : Maison d'envions 100 m² avec comme aménagement potentiel : Une entrée, 3 chambres, dont une suite parentale avec une salle de bain, un séjour lumineux pour vos moments en famille, une cuisine, un cellier, une salle de bain. De plus vous pouvez profiter d'une terrasse en bois pour les beaux jours. Cette habitation est pensée et conçue de manière à limiter la consommation d'énergie grâce aux ouvertures orienté vers le soleil. Système de chauffage conseillé poêles à bois ou à granulée. Atout de la maison Cuve de 5000 litres pour alimenter le WC en eau de pluie. Isolation ITE des murs en fibre de bois dense (145 mm) avec un parapluie en fibre de bois également afin de limiter les ponts thermiques. En ajoutant de la laine de verre et en construisant des cloisons en plaques de plâtre, la maison deviendra passive. Le toit est isolée par 80 mm de polystyrène accompagné d'un membrane en caoutchouc souple pour permettre d'étanchéifier la toitures. Fenêtre alu et pvc double vitrage. Assainissement réalisé : fosse toute eau avec pompe de relevage aux normes. la volonté est d'inscrire le projet dans le respect du paysage et de l'environnement existant. Terrain d'environ 1300 M² entièrement clôturé. Maison non viabilisé mais réseau située à proximité ( sans compteur d'eau ni d'électricité ) Non soumis au DPE. Les informations sur les risques auxquels ce bien est exposé sont disponibles sur le site Géorisques : www.georisques.gouv.fr CONDITIONS : Prix : 160 000 euros Honoraire charge vendeur REF : 8949SR Pour visiter contacter l'agence Delamarche Immobilier, Simon Regnault au 06 14 87 59 85

Les photos du bien

Les diagnostics


DPE
Energie non communiquée
GES
GES non communiqué