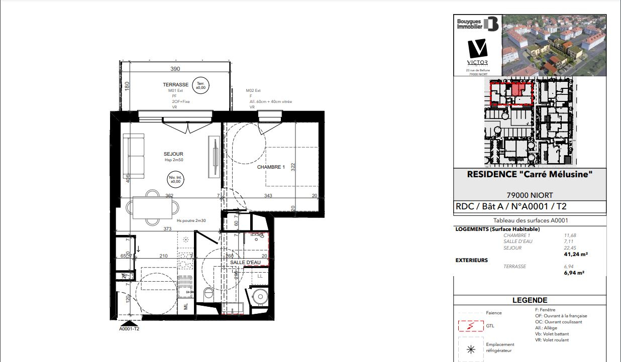
En vente Appartement 2 pièces 41 m2
| Ville | NIORT |
| Code postal | 79000 |
| Type de bien | Appartement |
| Surface | 41 m2 |
| Nombre de pièces | 2 pièces |
| Prix | 159 000,00 € |
| Informations sur l'annonceur | |
|---|---|
| Annonce de professionnel |
|
| Agence | AGENCE AMI NIORT Voir toutes les annonces |
| Adresse | 13 AVENUE DE LA REPUBLIQUE RESIDENCE MONTAIGNE |
| 79000 NIORT | |
| Téléphone Fixe | 0549244747 |
| Portable |
Description
NIORT - Quartier Blauderie, dans Résidence neuve avec ascenseur, appartement T2 de 41m² comprenant séjour/cuisine, chambre, salle d'eau avec wc, terrasse, parking privatif. Chauffage individuel électrique. Belles prestations et quartier calme, bus de ville au pied de la résidence.