En vente Appartement 1 pièce 31 m2

Ville RENNES
Code postal 35000
Type de bien Appartement
Surface 31 m2
Nombre de pièces 1 pièce
Prix 135 000,00 €
Informations sur l'annonceur
Annonce de professionnel
Agence VALORITY ADMINISTRATION DE BIENS
Voir toutes les annonces
Adresse 94, Quai Charles de Gaulle
69006 Lyon
Téléphone Fixe 0970808085

Description

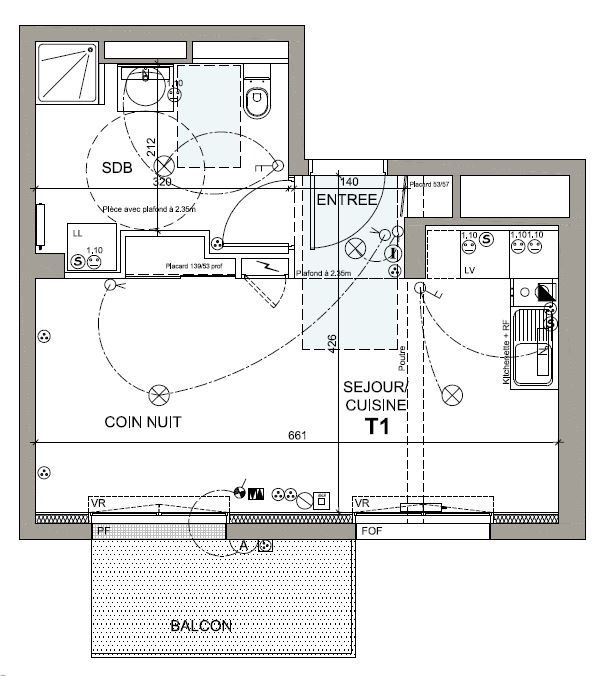
RENNES - Rue Jean Marin. VENDU LOUE : 392 euros HC / mois. Proche centre, face à la Coulée verte. Dans un environnement agréable, cet appartement T1 d'une superficie de 31,14 m² Carrez se situe au 2ème étage d'une résidence de 2014. Il se compose : - d'une entrée - d'un espace séjour / cuisine de 22 m² - d'un balcon de 5 m² exposé Est - d'un coin nuit avec rangement - d'une salle d'eau avec WC Un place de parking privative complète le bien. Chauffage collectif gaz. Charges annuelles : 897 euros. Ses atouts : Emplacement, proche toutes commodités, résidence récente, balcon, parking, idéal investissement. Copropriété de 93 lots - dont 73 lots habitation. (Pas de procédure en cours). Charges annuelles : 897.77 euros.

Les photos du bien

Les diagnostics


DPE
Bâtiment économe
137
Bâtiment énergivore
en kWh.an/m².an
GES
Faible émission de GES*
26
Forte émission de GES*
* Gaz à effet de serre en KgeqCO2/m².an