En vente Appartement 3 pièces 65 m2
| Ville | RENNES |
| Code postal | 35000 |
| Type de bien | Appartement |
| Surface | 65 m2 |
| Nombre de pièces | 3 pièces |
| Prix | 249 000,00 € |
| Informations sur l'annonceur | |
|---|---|
| Annonce de professionnel |
|
| Agence | VALORITY ADMINISTRATION DE BIENS Voir toutes les annonces |
| Adresse | 94, Quai Charles de Gaulle |
| 69006 Lyon | |
| Téléphone Fixe | 0970808085 |
Description
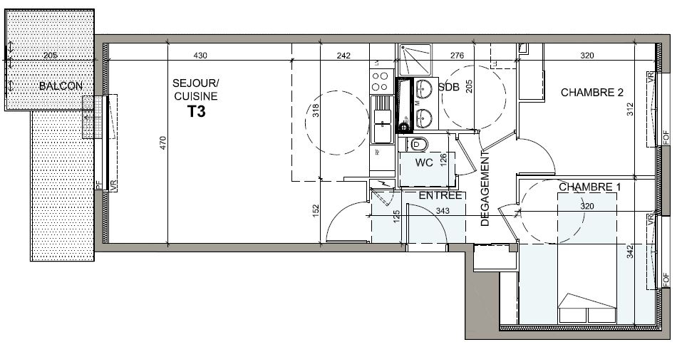
RENNES - Rue Jean Marin. Au calme, cet appartement d'une superficie de 65,33 m² Carrez se situe au 2ème étage d'une résidence de 2014 entourée d'espaces verts. Il se compose : - d'une entrée - d'un grand séjour avec cuisine ouverte aménagée de 30 m² - d'un balcon de 10 m² exposé Ouest sans vis-à-vis - de deux chambres (de 9,80 m² et 11,58 m²) - d'une salle d'eau - d'un WC indépendant Une place de parking privative et une cave complètent ce bien. Chauffage collectif. Charges annuelles : 1 800 euros (eau et chauffage compris). Ses atouts : Emplacement, à proximité des services et des commerces, résidence récente, balcon. Copropriété de 93 lots - dont 73 lots habitation. (Pas de procédure en cours). Charges annuelles : 1800 euros.
Les photos du bien
Les diagnostics
DPE
| Bâtiment économe |
|---|
| |
| |
| 130 |
| |
| |
| |
| |
| Bâtiment énergivore |
| en kWh.an/m².an |
GES
| Faible émission de GES* |
|---|
| |
| |
| 26 |
| |
| |
| |
| |
| Forte émission de GES* |
| * Gaz à effet de serre en KgeqCO2/m².an |