En vente Maison 14 pièces 220 m2
| Ville | MERLEVENEZ |
| Code postal | 56700 |
| Type de bien | Maison |
| Surface | 220 m2 |
| Nombre de pièces | 14 pièces |
| Prix | 371 070,00 € |
| Informations sur l'annonceur | |
|---|---|
| Annonce de professionnel |
|
| Agence | PARKI IMMOBILIER PLOUHINEC Voir toutes les annonces |
| Adresse | 61 ROUTE DE PONT LOROIS |
| 56680 PLOUHINEC | |
| Téléphone Fixe | 0297367373 |
| Portable |
Description
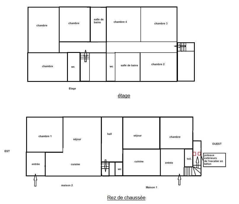
Idéal investisseur ou Maison familiale Potentiel Énorme pour cette propriété divisée en 2 logements exposés Sud et comprenant chacun ; au rdc entrée, wc, cuisine, salon-séjour et à l'étage, 3 chambres , wc et salle de bain, et caves respectives. Le tout sur un terrain d'environ 850m². Rénovations à prévoir. Au calme et commerces à pied, à Merlevenez. (6.02 % honoraires TTC à la charge de l'acquéreur.)
Les photos du bien
Les diagnostics
DPE
| Bâtiment économe |
|---|
| |
| |
| |
| |
| 329 |
| |
| |
| Bâtiment énergivore |
| en kWh.an/m².an |
GES
| Faible émission de GES* |
|---|
| |
| 11 |
| |
| |
| |
| |
| |
| Forte émission de GES* |
| * Gaz à effet de serre en KgeqCO2/m².an |