En vente Maison 4 pièces 175 m2
| Ville | MINIAC MORVAN |
| Code postal | 35540 |
| Type de bien | Maison |
| Surface | 175 m2 |
| Nombre de pièces | 4 pièces |
| Prix | 450 640,00 € |
| Informations sur l'annonceur | |
|---|---|
| Annonce de professionnel |
|
| Agence | Agence de la Maison Rouge - Dol-de-Bretagne Voir toutes les annonces |
| Adresse | 46 Grande Rue des Stuarts |
| 35120 Dol-de-Bretagne | |
| Téléphone Fixe | 0299737172 |
Description
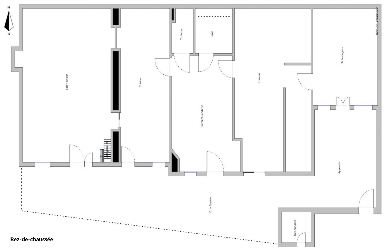
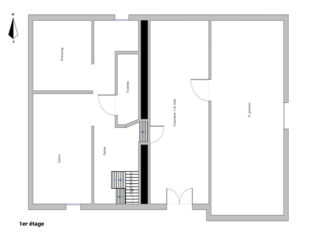
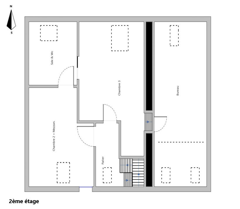
MAISON ROUGE DOL-DE-BRETAGNE propose cette maison sur trois niveaux située à pied des commodités offrant un espace de vie atypique et chaleureux. Le rez-de-chaussée offre un salon séjour, une cuisine indépendante aménagée et équipée, une buanderie, une cave et un WC. Au premier étage la palier dessert une bibliothèque, un dressing, un WC et une suite parentale avec chambre, salle de bains avec douche et baignoire, un potentiel dressing et une mezzanine. Le deuxième étage se compose de deux chambres , une salle d'eau et un bureau en mezzanine qui surplombe la suite parentale du premier. Grand hangar avec grenier idéal pour du stockage, salle de sport/salle de jeux et jardin d'hiver ouvert sur la cour. En complément une parcelle de terrain non attenante d'environ 150 m² vient compléter cet ensemble. N'hésitez plus et venez visiter cette maison qui saura vous charmer par ses beaux volumes et sa rénovation de qualité. Les + : Rénovation de qualité / Commodités à pieds / Exposition SUD / Aucun travaux à prévoir / DPE C / Hangar de stockage MAISON ROUGE DOL-DE-BRETAGNE - 46. Grande Rue des Stuarts 02.99.73.71.72 Prix FAI : 450 640 euros dont 4.80 % honoraires TTC à la charge de l'acquéreur.
Les photos du bien
Les diagnostics
| Bâtiment économe |
|---|
| |
| |
| 169 |
| |
| |
| |
| |
| Bâtiment énergivore |
| en kWh.an/m².an |
| Faible émission de GES* |
|---|
| 5 |
| |
| |
| |
| |
| |
| |
| Forte émission de GES* |
| * Gaz à effet de serre en KgeqCO2/m².an |