En vente Maison 4 pièces 97 m2

Ville VIRIAT
Code postal 01440
Type de bien Maison
Surface 97 m2
Nombre de pièces 4 pièces
Prix 299 000,00 €
Informations sur l'annonceur
Annonce de professionnel
Agence L'adresse Bourg En Bresse
Voir toutes les annonces
Adresse 48BIS Boulevard de Bron
01000 Bourg En Bresse
Téléphone Fixe 0474450600

Description

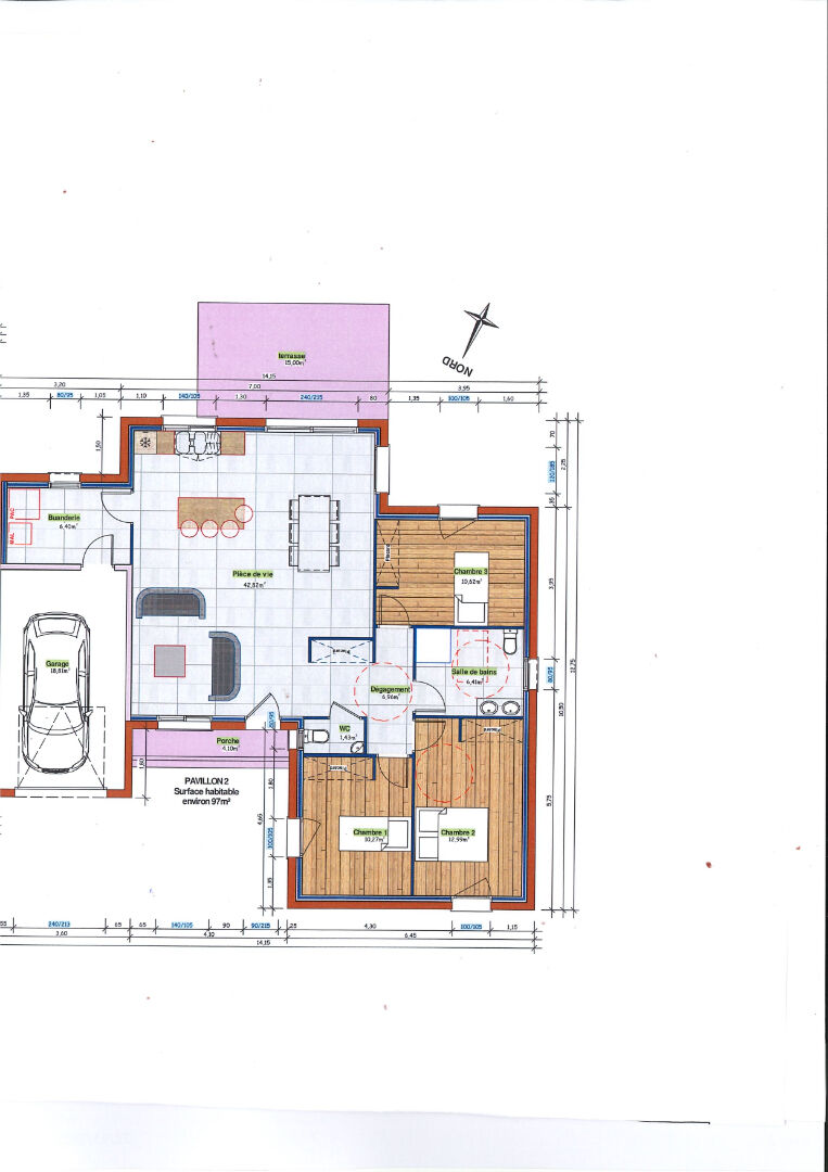
Située dans un secteur calme et résidentiel de Viriat, cette villa neuve, vendue en l'état futur d'achèvement, vous offre une opportunité unique d'acquérir un bien qui correspond parfaitement à vos attentes. Avec une implantation sur un terrain de 515 m², vous bénéficierez d'un terrain clos, ainsi qu'une terrasse déjà réalisée. Ce projet vous permet de personnaliser entièrement l'aménagement intérieur selon vos goûts et besoins. La villa comprend une grande pièce de vie de 43 m² orientée plein sud, idéale pour profiter de la lumière naturelle et des moments conviviaux. Vous disposerez également de trois chambres spacieuses, offrant confort et intimité, ainsi qu'une grande salle de bains lumineuse, équipée d'une douche et d'une baignoire. Le bien comprend aussi des toilettes suspendues avec lave-mains, une buanderie pratique et un garage spacieux, garantissant des espaces fonctionnels au quotidien. Côté confort, cette villa sera équipée d'un chauffage par pompe à chaleur avec plancher chauffant hydraulique et régulation, assurant une température agréable et une faible consommation énergétique tout au long de l'année. De plus, la construction répond aux dernières normes thermiques RE2020, garantissant ainsi une efficacité énergétique optimale et un confort durable. Cette maison représente une belle occasion de vivre dans un environnement moderne, confortable et entièrement personnalisé. Ne manquez pas cette opportunité à découvrir rapidement ! (photos d'illustration)

Les photos du bien

Les diagnostics


DPE
Energie non communiquée
GES
GES non communiqué