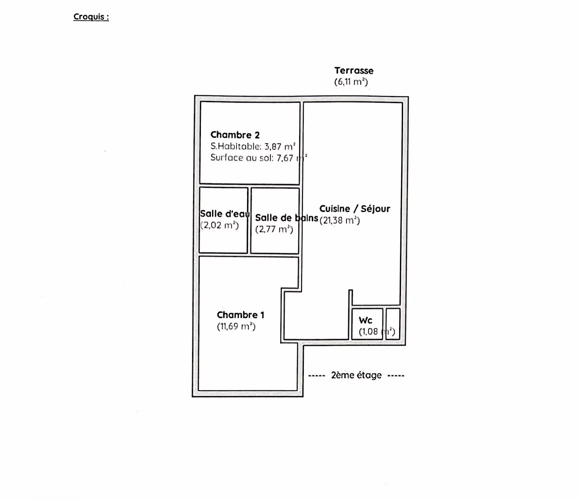
En vente Appartement 3 pièces 43 m2

Ville Trois Epis
Code postal 68410
Type de bien Appartement
Surface 43 m2
Nombre de pièces 3 pièces
Prix 70 000,00 €
Informations sur l'annonceur
Annonce de professionnel
Nom
Adresse
06300
Négociateur Manon BORGOGNO
68410 Trois Epis
Téléphone +33616028518

Description

Situé à Ammerschwihr commune française du Haut Rhin, proche de Colmar, appartement de trois pièces de 46m2 au total dans un golf avec un bel environnement. Idéal placement immobilier.

Les photos du bien

Les diagnostics


DPE
Bâtiment économe
247
Bâtiment énergivore
en kWh.an/m².an
GES
Faible émission de GES*
143
Forte émission de GES*
* Gaz à effet de serre en KgeqCO2/m².an

Les informations complémentaires

3 pièces