En vente Maison 7 pièces
| Ville | Sainte-Marie |
| Code postal | 58330 |
| Type de bien | Maison |
| Surface | |
| Nombre de pièces | 7 pièces |
| Prix | 298 000,00 € |
| Informations sur l'annonceur | |
|---|---|
| Annonce de professionnel |
|
| Nom | |
| Adresse | |
| 58110 | |
| Négociateur | Timo KLAPWIJK 58330 Sainte-Marie |
| Téléphone | +33638013560 |
Description
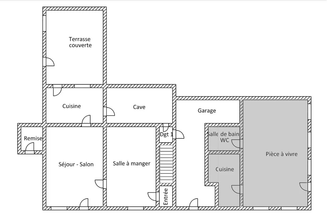
Découvrez cette belle ferme. accompagnée d’un gîte et d’un terrain de 3.4 hectares. située dans un environnement calme et verdoyant. à seulement 10 minutes de la ville de Premery et 8 minutes de Saint-Saulge. La maison principale comprend un grand séjour. une salle à manger. une cuisine équipée ouvrant sur une terrasse couverte. une cave et un cellier au rez-de-chaussée. Une petite pièce en mezzanine abrite une pièce de rangement et des toilettes. À l’étage. se trouvent quatre chambres. dont deux avec salle d’eau et toilettes privatifs. ainsi qu’une salle de bain et des toilettes supplémentaires. Un grenier de 40m2 peut être encore aménagé. Le gîte. quant à lui. se compose d’une spacieuse pièce de vie. d’une cuisine. d’une salle d’eau avec toilettes. et d’une grande chambre en mezzanine. À l’extérieur. deux écuries. une dépendance et un terrain de 3.4 hectares complètent l’ensemble. Chauffage au bois + électrique. La propriété possède également 42 panneaux solaires afin de réduire drastiquement les coûts énergétiques. Pour toute information ou pour organiser une visite. n’hésitez pas à me contacter. Honoraires à la charge du vendeur
Les photos du bien
Les diagnostics
| Bâtiment économe |
|---|
| |
| |
| |
| |
| 295 |
| |
| |
| Bâtiment énergivore |
| en kWh.an/m².an |
| Faible émission de GES* |
|---|
| |
| 9 |
| |
| |
| |
| |
| |
| Forte émission de GES* |
| * Gaz à effet de serre en KgeqCO2/m².an |
Les informations complémentaires
Propriété avec gîte sur 3.4 hectares