En vente Maison 4 pièces 92 m2
| Ville | Sotta |
| Code postal | 20146 |
| Type de bien | Maison |
| Surface | 92 m2 |
| Nombre de pièces | 4 pièces |
| Prix | 655 000,00 € |
| Informations sur l'annonceur | |
|---|---|
| Annonce de professionnel |
|
| Agence | La Maison de l'Immobilier Voir toutes les annonces |
| Adresse | IMMEUBLE BIANCARELLI |
| 20137 Porto-Vecchio | |
| Négociateur | François TAFANI 20146 Sotta |
| Téléphone | +33611589807 |
Description
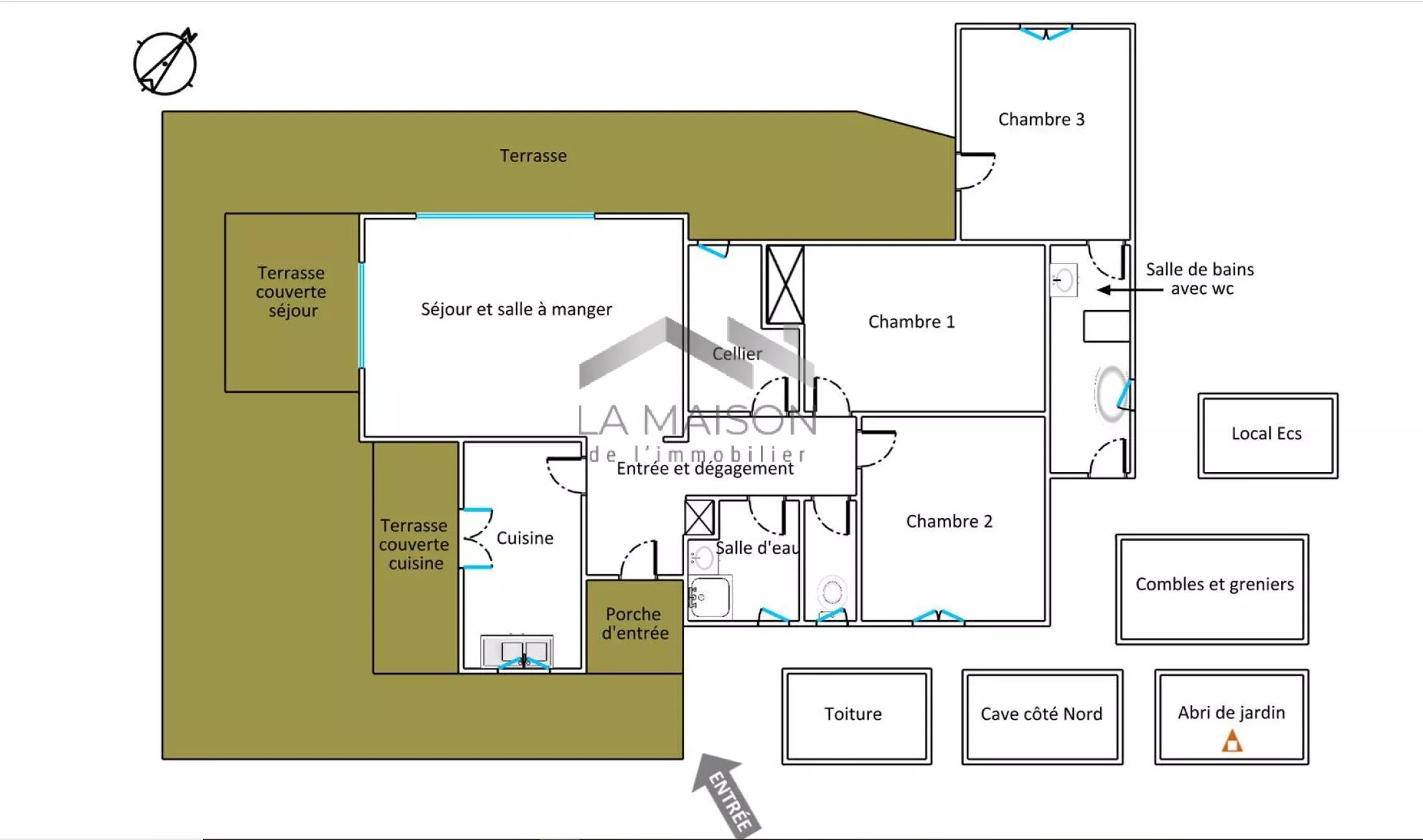
Située dans un environnement calme et préservé, à seulement quelques minutes du village de Sotta et à proximité de Porto-Vecchio, cette maison de plain-pied développe une surface habitable d’environ 92 m² et bénéficie d’une vue dégagée sur les montagnes. Implantée sur un magnifique terrain de 4 090 m², la propriété offre un cadre de vie rare, sans vis-à-vis, idéal pour les amoureux de nature et de tranquillité. La maison se compose d’un séjour lumineux avec cheminée, ouvrant sur une terrasse extérieure, d’une cuisine indépendante avec possibilité d’ouverture pour créer un bel espace de vie moderne, de trois chambres, ainsi que de deux salles de bain. Entièrement climatisée, elle dispose également d’une cave et de plusieurs espaces de stockage, apportant un réel confort au quotidien. Des travaux de rénovation et de mise au goût du jour sont à prévoir, offrant une belle opportunité de personnalisation pour en faire une résidence principale, secondaire ou un investissement de qualité. Le bien est équipé d’un système d’assainissement individuel (fosse septique). Le Diagnostic de Performance Énergétique (DPE) est en cours de réalisation.
Les photos du bien
Les diagnostics
Les informations complémentaires
Maison de plain-pied avec 4000m² de terrain
Prix de vente honoraires TTC inclus : 615 000 €