En vente Maison 4 pièces 90 m2

Ville Saint-Étienne
Code postal 42230
Type de bien Maison
Surface 90 m2
Nombre de pièces 4 pièces
Prix 422 850,00 €
Informations sur l'annonceur
Annonce de professionnel
Agence Cecile Robin
Voir toutes les annonces
Adresse 129 chemin du Moulin Carron
69130 Ecully
Téléphone Fixe 0474055072

Description

Les Maisons CECILE ROBIN, constructeur reconnu depuis près de 25 ans, vous propose de construire votre maison neuve aux dernières normes RE2020, sur la commune prisée de St Priest en Jarez, à deux pas de Saint-Etienne.
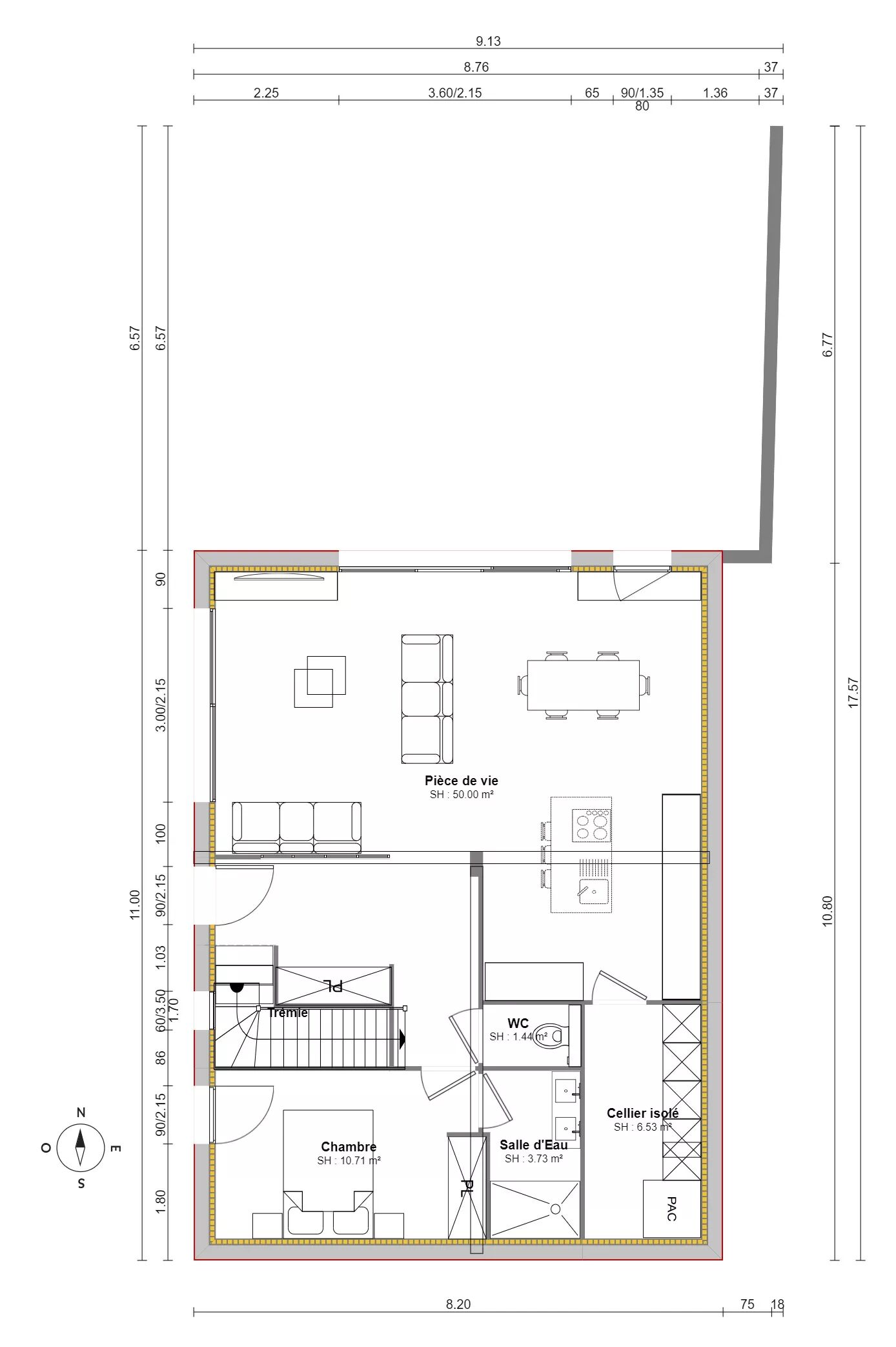
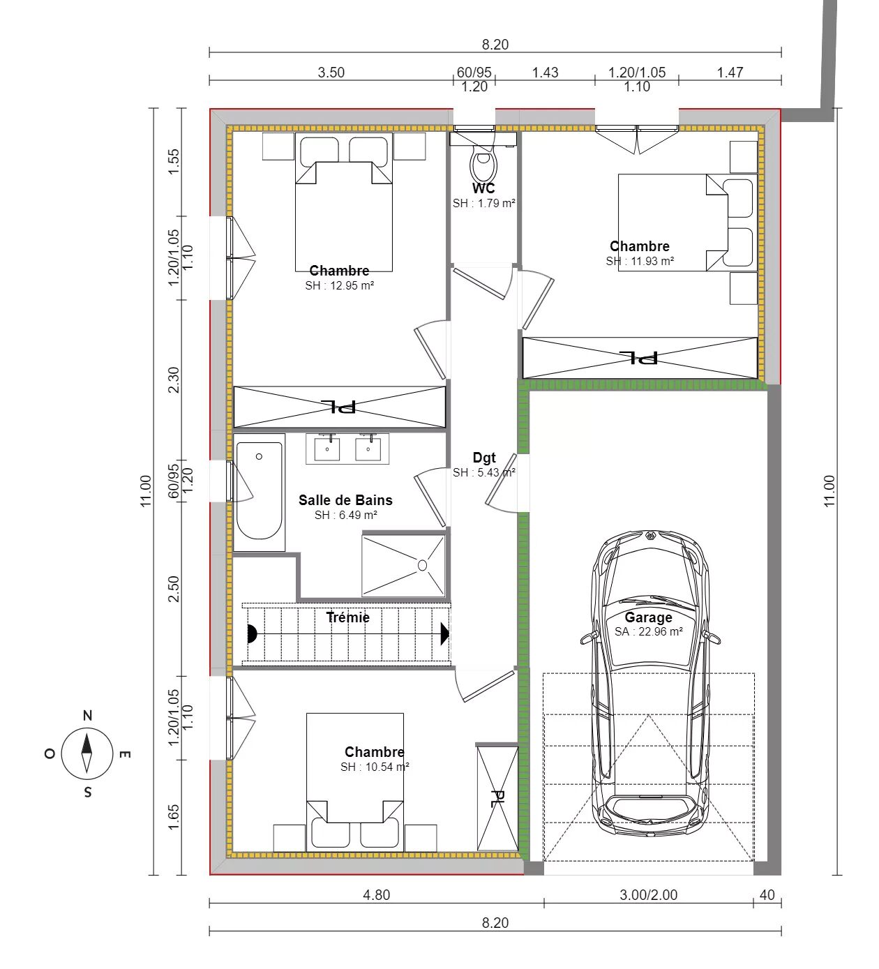
La maison présentée sur son terrain de 627 m² offre plus de 120 m² habitable + un garage.
Vous disposerez d'une grande et belle pièce de vie extrêmement lumineuse donnant directement sur la terrasse et le jardin.
Ainsi que de 4 chambres (dont 1 au rdc), 2 salles de bain (dont 1 au rdc), 2 WC (dont 1 au rdc).
La maison sera élevée sur vide sanitaire.
Le chauffage prévu est une PAC air / eau couplé à un plancher chauffant bi-zone.
Les nombreuses menuiseries extérieures gris anthracite RAL7016 apportent une touche de modernité.
Le sol sera carrelé en format 60x60. L'escalier béton sera carrelé également.
Plus d'information dans le dossier complet.
L'aménagement intérieur est personnalisable.
Rencontrons-nous et étudions votre projet dans le respect de vos besoins et de votre budget.
Profitez de notre savoir-faire reconnu, et bénéficiez de prestations de haute qualité.
Prévoir une enveloppe supplémentaire pour financer les éléments non inclus dans le prix affiché : frais de notaire, taxes, peinture, revêtement de sol des chambres, cuisine, embellissements extérieurs.
Photos maison non contractuelles, terrain vu pour vous, dont nous ne sommes ni propriétaire ni vendeur.
N'hésitez pas à nous contacter pour de plus amples informations.
Votre contact : Gianni BERNOCOLO
Tel : 06 72 33 02 57.
Informations LOI ALUR :
Honoraires charge vendeur. (gedeon_42470_29605556)

Les photos du bien

Les diagnostics DPE : A


DPE
Bâtiment économe
Bâtiment énergivore
en kWh.an/m².an
GES
GES non communiqué

Les informations complémentaires

Maison neuve 4 chambres à Saint Priest en Jarez (proche Saint Etienne, Loire), sur terrain de 627m².