En vente Maison 8 pièces 178 m2
Ville | SAINT BRIAC SUR MER |
Code postal | 35800 |
Type de bien | Maison |
Surface | 178 m2 |
Nombre de pièces | 8 pièces |
Prix | 1 676 800,00 € |
Informations sur l'annonceur | |
---|---|
Annonce de professionnel |
|
Agence | Agence Maison Rouge - Saint-Briac Voir toutes les annonces |
Adresse | |
35800 Saint-Briac-sur-Mer | |
Téléphone Fixe | 0299883990 |
Description
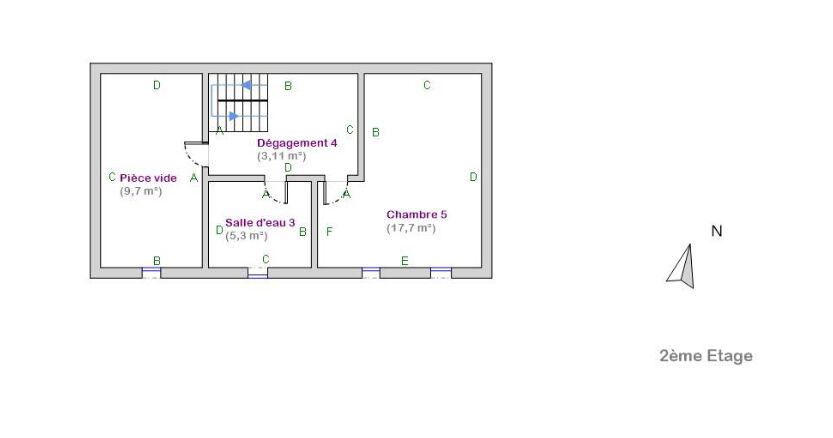
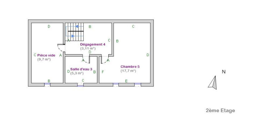
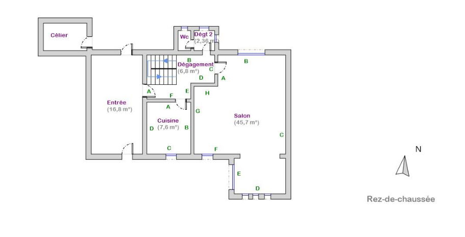
Maison de pays dans un environnement prisé, authentique et préservé, à deux pas des plages et au calme, sur un jardin clos de murs en pierres. La maison comprend au rez-de-chaussée, un double séjour avec cheminée, cuisine, pièce à usage de rangement, ,WC. 1er étage: 4 chambres, salle d'eau, douche, WC combles aménagés avec 3 chambres. Dépendance et espace de stationnement Prix FAI : 1 676 800 euros dont 4.80 % honoraires TTC à la charge de l'acquéreur.
Les photos du bien
Les diagnostics
DPE
Bâtiment économe |
---|
![]() |
![]() |
![]() |
![]() 208 |
![]() |
![]() |
![]() |
Bâtiment énergivore |
en kWh.an/m².an |
GES
Faible émission de GES* |
---|
![]() |
![]() 10 |
![]() |
![]() |
![]() |
![]() |
![]() |
Forte émission de GES* |
* Gaz à effet de serre en KgeqCO2/m².an |