En vente Terrain 517 m2

Ville THAON
Code postal 14610
Type de bien Terrain
Surface 517 m2
Nombre de pièces
Prix 107 500,00 €
Informations sur l'annonceur
Annonce de professionnel
Agence A Tri Home Eterville
Voir toutes les annonces
Adresse 9 impasse du vieux tilleul
14930 ETERVILLE
Téléphone Fixe
Portable

Description

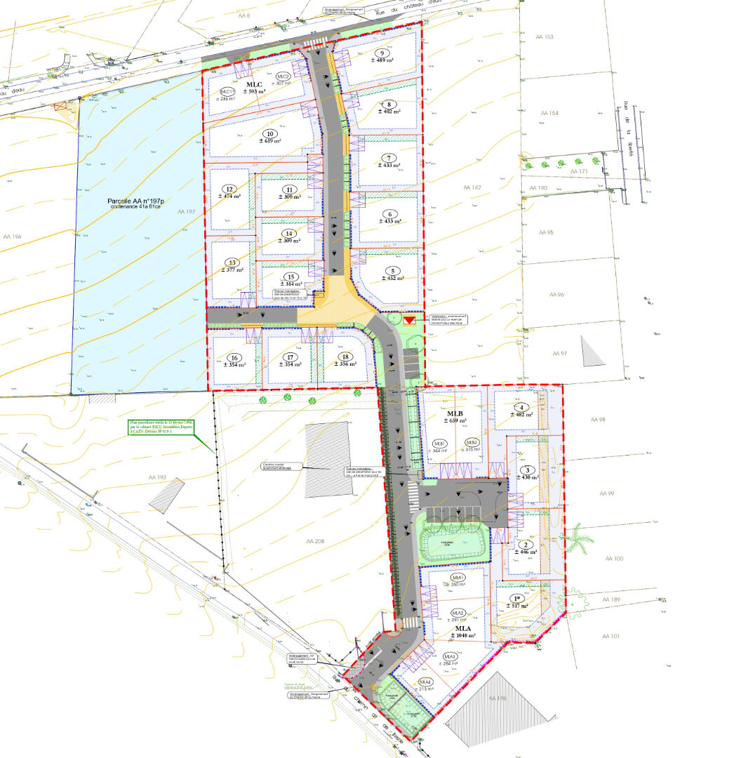
Dans le lotissement "LE CHATEAU D'EAU" à THAON, composé de 26 parcelles de terrain à bâtir avec libre choix de constructeur. ATTENTION, il nous RESTE que 12 parcelles disponibles. Ce lot N°1 pour 517 m² est exposé Sud avec son implantation intéressante, elle se situe à l'écart des regards. Idéal pour construire sa résidence principale. Surface de plancher maximum 250 m². Idéalement situé entre Caen et la mer, cette commune dynamique avec bon nombre d'activités sportive et culturelle, ou l'on peut trouver, notamment: -Des commerces de type: Boulangerie, bar-tabac, garage, Carrefour contact, -Une école: Maternel et primaire. Nous vous proposons aussi d'autres disponibles de 312 m² à 659 m², pour résidence principale ou investissement locatif en macro lot. (soit de 63 000 euros à 129 000 euros) Les terrains seront livrable au fin 2025, viabilisés pour déposer un permis immédiat. Informations complètes en agence. VENEZ HABITER SUR LA COMMUNE DE THAON !!

Les photos du bien

Les diagnostics


DPE
Energie non communiquée
GES
GES non communiqué