En vente Maison 3 pièces 96 m2
| Ville | LE MINIHIC SUR RANCE |
| Code postal | 35870 |
| Type de bien | Maison |
| Surface | 96 m2 |
| Nombre de pièces | 3 pièces |
| Prix | 419 200,00 € |
| Informations sur l'annonceur | |
|---|---|
| Annonce de professionnel |
|
| Agence | Agence Emeraude - Agence Emeraude Voir toutes les annonces |
| Adresse | 48 rue Levavasseur |
| 35800 Dinard | |
| Téléphone Fixe | 0299461101 |
| Portable |
Description
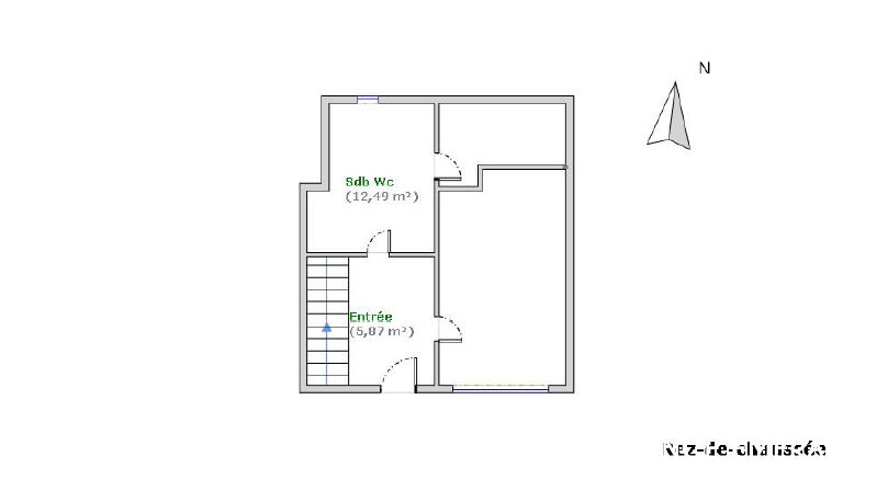
A vendre Le MINHIC-SUR-RANCE, cale de Landriais, maison de charme composée de Au rez-de-chaussée : entrée, chambre, salle de bains-douche-wc, A l'étage : cuisine, salle à manger et salon avec cheminée, plafond cathédrale, belles échappées sur la rance. Dans les combles, chambre offrant une vue sur la rance. La rénovation de cette maison est très soignée, l'ambiance et l'atmosphère dégagée lui confère un pied à terre idéal. La maison ne dispose ni de parking, ni de jardin. Il est possible de se garer à proximité immédiate, la cale de Landrais et les chemins de randonnées sont au pied de la maison. Les commerces du centre bourg sont accessibles à pied. Pour plus d'informations ou demande de visites, contactez l'agence emeraude à Dinard, référence 7575, contact@agenceemeraude.fr - 0299461101. (4.80 % honoraires TTC à la charge de l'acquéreur.)
Les photos du bien
Les diagnostics
| Bâtiment économe |
|---|
| |
| |
| |
| 216 |
| |
| |
| |
| Bâtiment énergivore |
| en kWh.an/m².an |
| Faible émission de GES* |
|---|
| |
| 7 |
| |
| |
| |
| |
| |
| Forte émission de GES* |
| * Gaz à effet de serre en KgeqCO2/m².an |