En vente Maison 7 pièces

Ville Fréjus
Code postal 83600
Type de bien Maison
Surface
Nombre de pièces 7 pièces
Prix 1 085 000,00 €
Informations sur l'annonceur
Annonce de professionnel
Agence AAA Riviera
Voir toutes les annonces
Adresse 12, rue des Belges
06400 Cannes
Téléphone Fixe 0493008724

Description

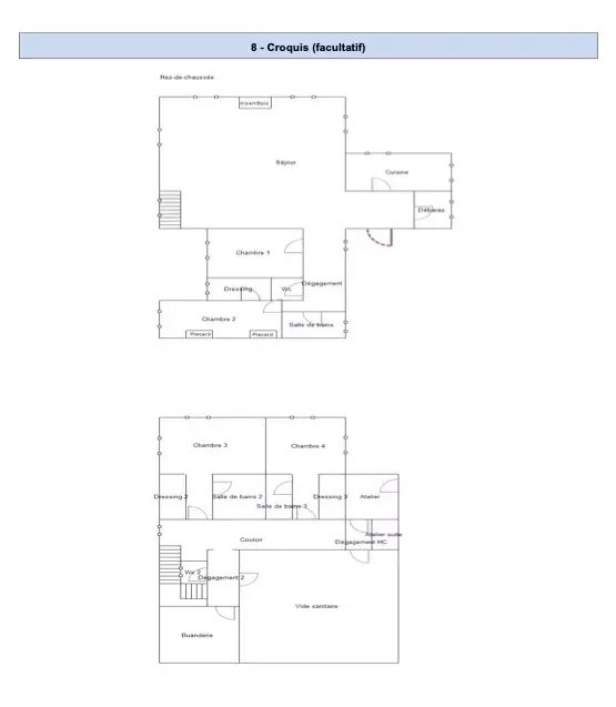
EXCLUSIVITE - Dans le quartier résidentiel de Valescure, à quelques minutes en voiture de Saint-Raphaël et de Boulouris, au calme et au fond d'une impasse, se trouve une magnifique propriété absolument impeccable. La propriété est édifiée sur deux niveaux, avec à l'étage supérieur un hall d'entrée et un petit bureau avec dressing. Le hall mène au salon avec coin repas, un salon avec cheminée et cette belle pièce à vivre donne sur un patio extérieur de 35m² et une terrasse de 16m². La cuisine entièrement équipée est séparée du salon par une grande fenêtre, qui a un accès direct également sur le patio où l'on trouve une cuisine d'été intégrée avec espace barbecue. Au même niveau, un couloir mène à des toilettes invités, une salle de douche avec double vasque, et deux chambres, chacune avec porte donnant sur un patio extérieur partagé. La chambre principale dispose d'un dressing. Depuis le salon, un escalier nous mène au niveau du jardin, avec des toilettes invités supplémentaires, 2 chambres, chacune avec dressing et salle de douche, donnant accès à un autre espace salon et à une terrasse de 48m² surplombant la piscine et le jardin. Quelques marches plus bas, une piscine à débordement de 5x8 mètres, avec un bel espace pour des chaises longues et des parasols. La propriété offre également une grande buanderie, un accès à toute la fondation via sa cave, un atelier, et un espace de rangement extérieur couvert pour les vélos et le matériel de jardin. Avec un jardin luxuriant et mature, cette villa incarne véritablement l'idéal de la demeure de style provençal avec sa piscine à débordement, ses multiples terrasses, espaces de détente et sa belle allée pavée. Le jardin est absolument magnifique, avec des arbres et des arbustes taillés à la perfection et une belle pelouse verte sous la piscine. Vous y trouverez aussi un carport pour une voiture et de l'espace pour trois autres voitures. L'entrée, merveilleusement pavée, mène à la propriété, à la piscine et au jardin en contrebas équipé d'un système d'arrosage et d'éclairage.

Les photos du bien

Les diagnostics