En vente Maison 4 pièces 166 m2
| Ville | Antibes |
| Code postal | 06160 |
| Type de bien | Maison |
| Surface | 166 m2 |
| Nombre de pièces | 4 pièces |
| Prix | 450 000,00 € |
| Informations sur l'annonceur | |
|---|---|
| Annonce de professionnel |
|
| Nom | |
| Adresse | |
| 06600 | |
| Portable | 0647793579 |
Description
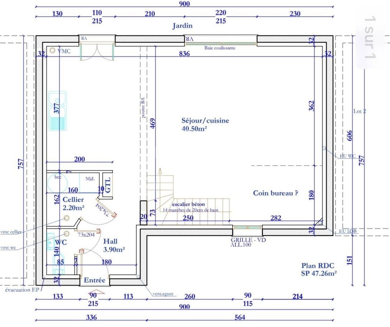
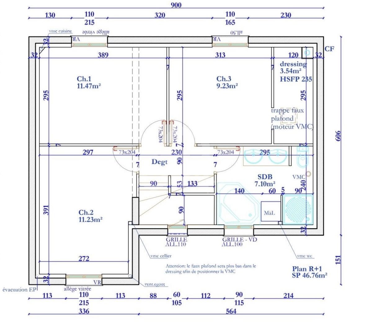
Proche du centre-ville et des plages de Juan-les-Pins, dans un petit domaine de 7 villas. Nous vous proposons une maison mitoyennes de 96 m² habitable avec jardin édifié en 2018. Composé au rez-de-chaussée d'une entrée donnant sur le séjour avec cuisine ouverte équipée ouvrant sur le jardin de 45 m² plein sud, d'un coin bureau, d'un cellier et d'une toilette séparé. À l'étage, trois chambres dont une parentale avec dressing, une salle de bains/douche avec toilettes. Deux emplacements de parkings privatifs complètent ce bien. Votre contact : Kevin Bourgeois - 06 47 79 35 79
Les photos du bien
Les diagnostics
DPE
| Bâtiment économe |
|---|
| |
| 96 |
| |
| |
| |
| |
| |
| Bâtiment énergivore |
| en kWh.an/m².an |
GES
| GES non communiqué |
|---|