En vente Terrain
Ville | Sautron |
Code postal | 44880 |
Type de bien | Terrain |
Surface | |
Nombre de pièces | |
Prix | 194 500,00 € |
Informations sur l'annonceur | |
---|---|
Annonce de professionnel |
|
Agence | Arthurimmo.com Nantes-Vignoble Immobilier Voir toutes les annonces |
Adresse | 8 Rue du Viaduc |
44450 Divatte-sur-Loire | |
Portable | 0678626530 |
Description
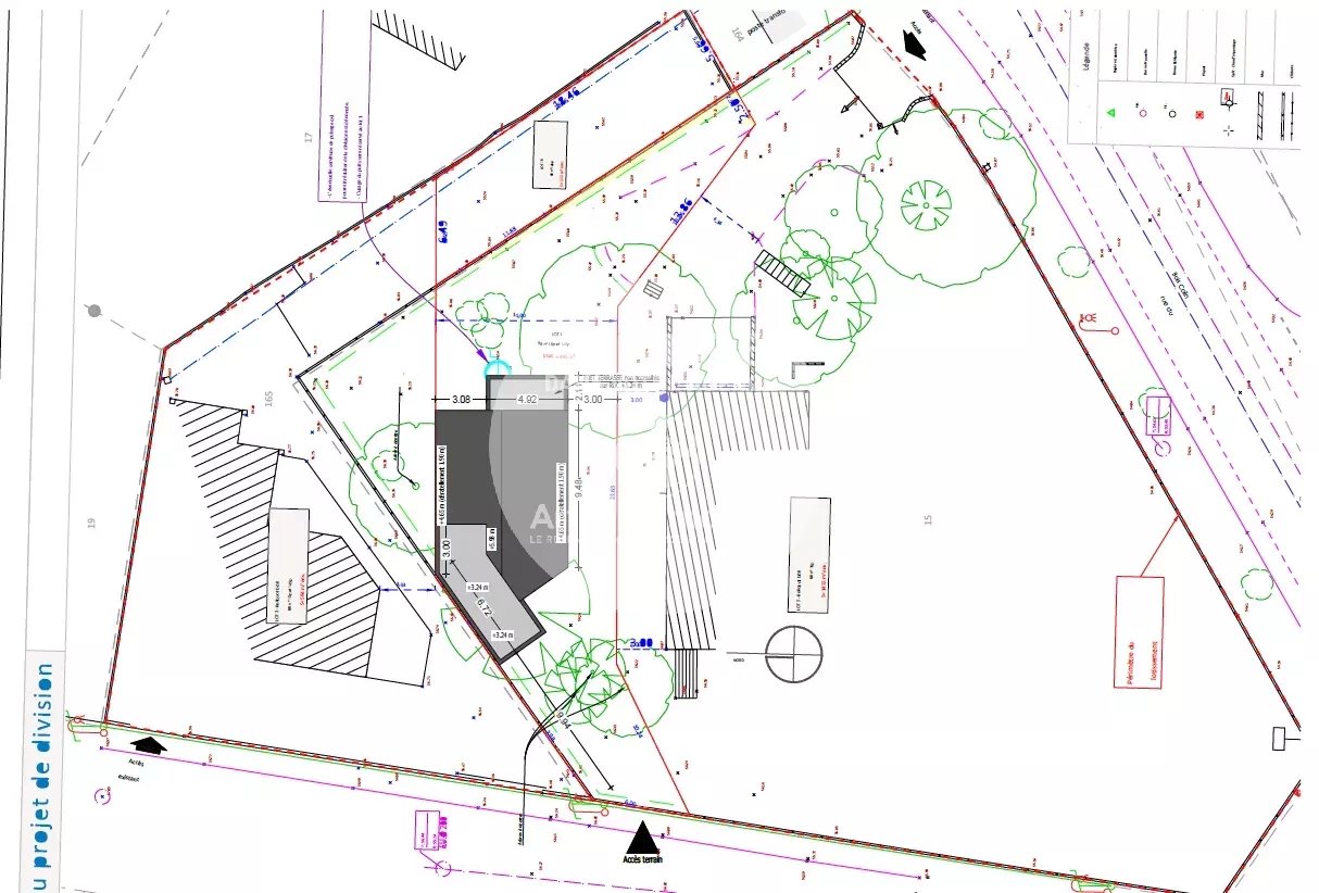
À vendre – Terrain constructible de 495 m² idéalement situé en plein cœur du bourg de Sautron, dans un secteur résidentiel, calme et recherché. Ce terrain plat, bien exposé Est-Ouest, offre un cadre parfait pour un projet de maison familiale ou de construction professionnelle (profession libérale, bureau, etc.). Zone UMD1 du PLU : construction possible en plain-pied ou à étage Non viabilisé, mais tous les réseaux (eau, électricité, télécom, assainissement) passent devant le terrain Terrain libre de constructeur Belle façade, environnement qualitatif À deux pas des commerces, écoles et transports Les + : Emplacement central dans le bourg de Sautron Exposition traversante Est-Ouest Environnement résidentiel et paisible Construction libre, plain-pied ou à étage Une opportunité rare sur le secteur, à découvrir rapidement !
Les photos du bien
Les diagnostics
Bâtiment économe |
---|
![]() -1 |
![]() |
![]() |
![]() |
![]() |
![]() |
![]() |
Bâtiment énergivore |
en kWh.an/m².an |
Faible émission de GES* |
---|
![]() -1 |
![]() |
![]() |
![]() |
![]() |
![]() |
![]() |
Forte émission de GES* |
* Gaz à effet de serre en KgeqCO2/m².an |