En vente Appartement 3 pièces 61 m2
| Ville | PARIS |
| Code postal | 75008 |
| Type de bien | Appartement |
| Surface | 61 m2 |
| Nombre de pièces | 3 pièces |
| Prix | 750 000,00 € |
| Informations sur l'annonceur | |
|---|---|
| Annonce de professionnel |
|
| Agence | LM CONSEIL Paris Voir toutes les annonces |
| Adresse | 105 rue de l'Abbé GROULT |
| 75015 PARIS | |
| Téléphone Fixe | 0608488839 |
Description
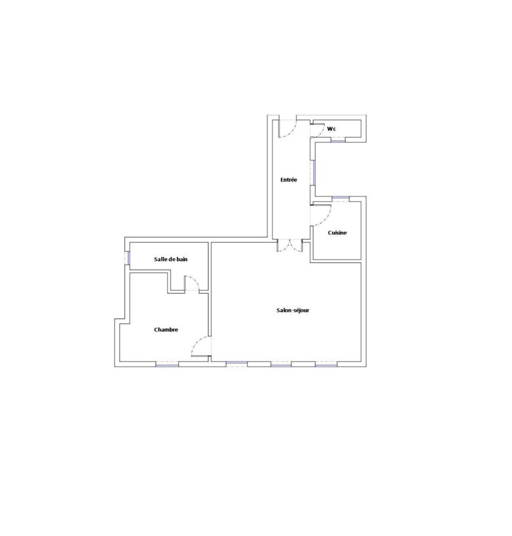
Appartement 3 pièces - 61,59 m² au sol (59,09 m² loi Carrez) Étage élevé avec ascenseur - Rénové - Adresse prestigieuse Situé au 5e étage avec ascenseur d'un bel immeuble ancien bien entretenu, cet appartement de 61,59 m² au sol (59,09 m² loi Carrez) offre un cadre de vie élégant et fonctionnel, au coeur d'un quartier prisé du 8e arrondissement. Agencement : Entrée accueillante avec WC invités, double séjour lumineux, parfait pour recevoir, cuisine séparée entièrement aménagée et neuve, chambre avec placard intégré, salle de bains avec WC. L'appartement a fait l'objet d'une rénovation : parquet neuf, peintures neuves, et cuisine contemporaine. L'ensemble offre une atmosphère sobre, chic et prête à vivre, sans travaux à prévoir. Localisation et cadre de vie : Nichée dans la très élégante rue de Penthièvre, entre Saint-Philippe du Roule et Miromesnil, l'adresse bénéficie d'un environnement résidentiel recherché, à deux pas des Champs-Élysées, de la rue du Faubourg Saint-Honoré et de toutes les commodités : commerces de qualité, restaurants, galeries, et établissements scolaires de renom. Transports à proximité immédiate : Métro Miromesnil (lignes 9 et 13) à 3 minutes à pied Métro Saint-Philippe du Roule (ligne 9) Nombreuses lignes de bus Accès rapide aux grands axes et à la gare Saint-Lazare Un bien rare à cette adresse, idéal pour une résidence principale de standing, un pied-à-terre raffiné ou un investissement patrimonial de qualité. Charme, adresse, et prestations réunies. (4.17 % honoraires TTC à la charge de l'acquéreur.) Copropriété de 39 lots - dont 28 lots habitation. (Pas de procédure en cours). Charges annuelles : 2031.88 euros.
Les photos du bien
Les diagnostics
| Bâtiment économe |
|---|
| |
| |
| |
| |
| 261 |
| |
| |
| Bâtiment énergivore |
| en kWh.an/m².an |
| Faible émission de GES* |
|---|
| |
| |
| |
| |
| 57 |
| |
| |
| Forte émission de GES* |
| * Gaz à effet de serre en KgeqCO2/m².an |