En vente Maison 16 pièces
| Ville | Mouron-sur-Yonne |
| Code postal | 58800 |
| Type de bien | Maison |
| Surface | |
| Nombre de pièces | 16 pièces |
| Prix | 455 000,00 € |
| Informations sur l'annonceur | |
|---|---|
| Annonce de professionnel |
|
| Nom | |
| Adresse | |
| 58110 | |
| Négociateur | Timo KLAPWIJK 58800 Mouron-sur-Yonne |
| Téléphone | +33638013560 |
Description
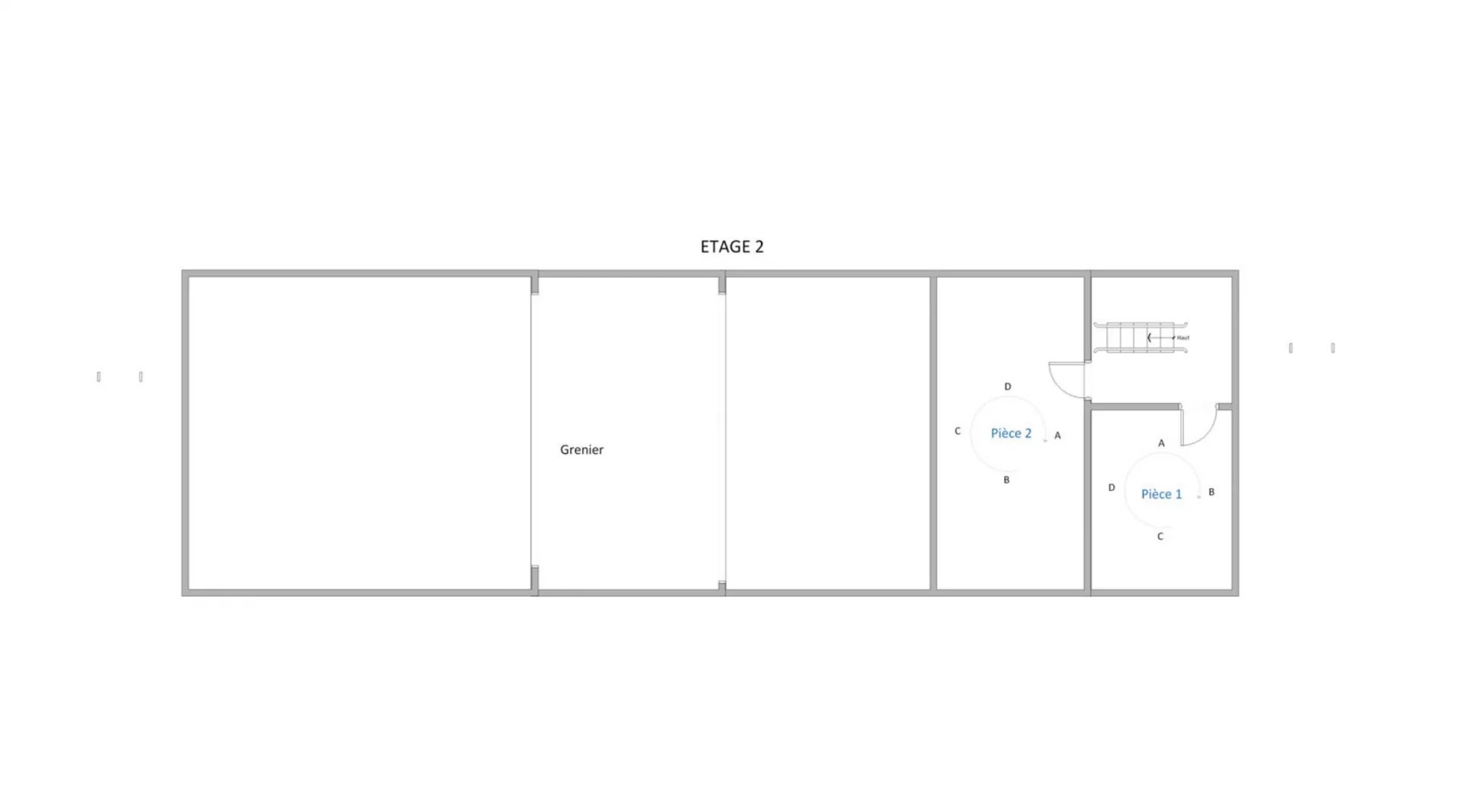
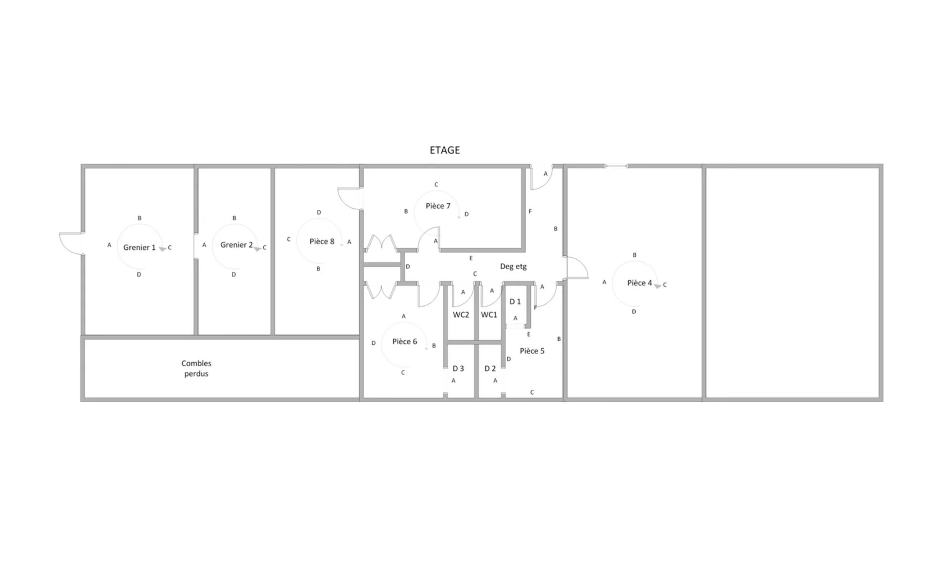
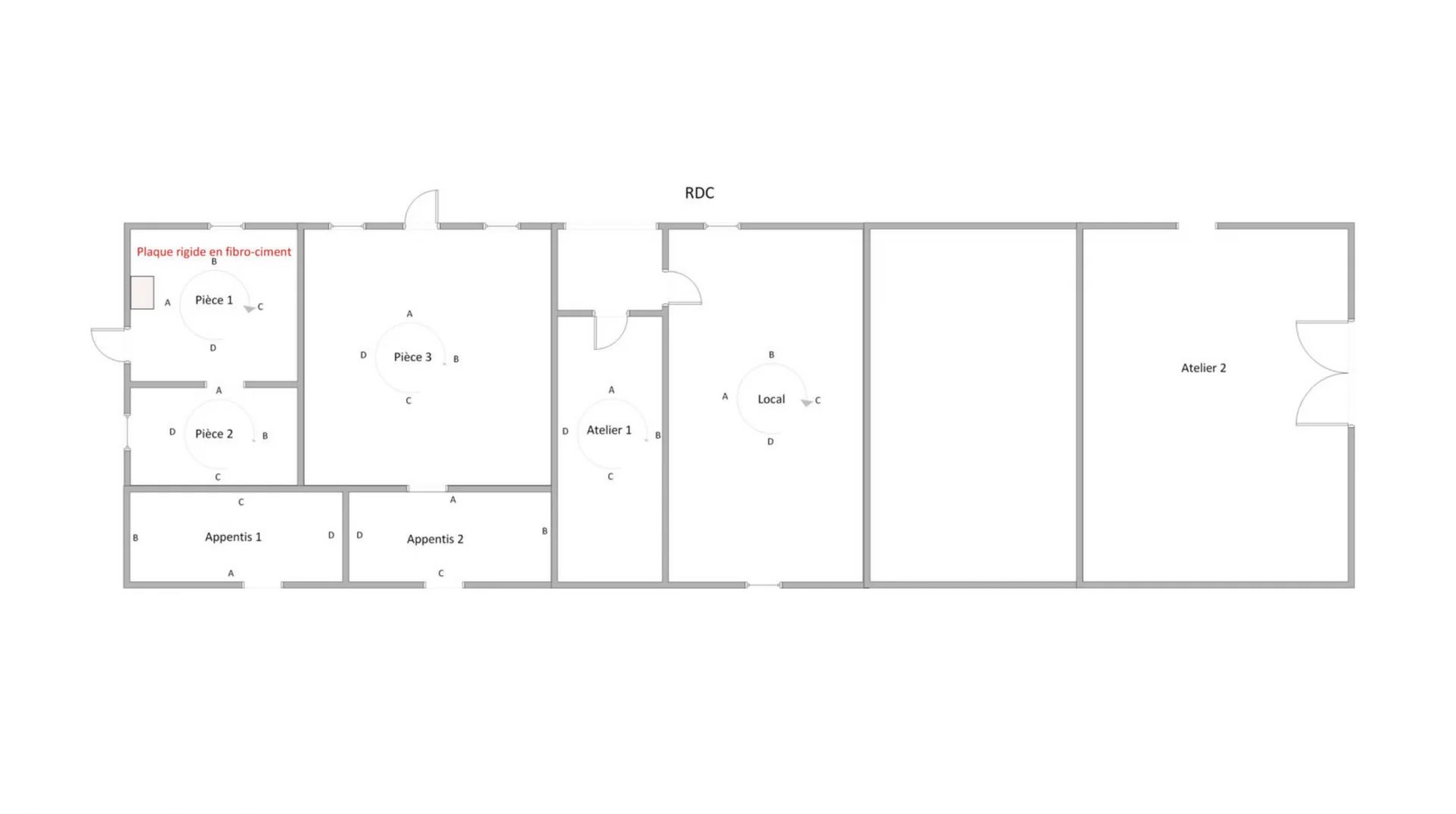
Plongez dans l’histoire avec cet ancien moulin du XVIIIème siècle, niché aux confins de la Bourgogne et du Nivernais. Cette propriété rare s’étend sur près de 5 hectares de pré et de bois, traversée par une rivière de première catégorie, offrant une multitude de possibilités pour les amoureux de la nature. Maison Principale (335 m²) Cette demeure spacieuse, en bon état de gros œuvre, est prête à accueillir ses nouveaux propriétaires. La maison est divisée en deux parties : Partie Droite : RDC : Grande pièce de vie avec cuisine, salle à manger et séjour (55 m²), suivie d’une arrière-cuisine, une entrée et un espace chaufferie. 1er Étage : Quatre chambres (15 m², 14 m², 11,5 m², 9,5 m²), palier, salle d’eau et WC. 2ème Étage : Deux chambres supplémentaires. Partie Gauche (Partie actuellement louée à 650 €/mois, avec un bail expirant en 2027) : RDC : Entrée, salle à manger, cuisine, salon, chambre, salle d’eau avec WC. Étage : Quatre chambres, un second salon, salle d’eau avec WC. Chauffage : Granulés, bois et électricité. Ancien chauffage central à remettre en route. Ancien Moulin (385 m²) Le moulin, chargé d’histoire, attend d’être restauré pour révéler tout son potentiel. Composé de nombreuses pièces (pièces de vie et de réceptions, chambres, salles de bains), il est en bon état de gros œuvre mais l’intérieur doit être réhabilité. Dépendances attenantes également. Autres dépendances : Usine : Immense usine de 1240 m², idéale pour divers projets. Deux autres usines en ruines. Bâtiment Indépendant : Salle de réception spacieuse de 120 m² avec cuisine, chambres et salle d’eau. Turbine Hydraulique : Ancienne turbine sous autorisation préfectorale à remettre en route avec un potentiel de 120 kW. Modernisation nécessaire, potentiel chiffre d’affaires de 40 000 €/an selon les contrats EDF actuels. Ce site exceptionnel offre un cadre idéal pour divers projets : Hébergements touristiques Projet de vie au vert Centre de bien-être et de santé holistique Pisciculture et parcours de pêche privé À seulement 10 km d’un village dynamique avec école, collège, maison médicale, commerces, supermarchés, et marchés locaux. Pour plus d’informations, veuillez nous contacter. Honoraires à la charge du vendeur
Les photos du bien
Les diagnostics
| Energie non communiquée |
|---|
| Faible émission de GES* |
|---|
| |
| |
| |
| |
| |
| |
| 362 |
| Forte émission de GES* |
| * Gaz à effet de serre en KgeqCO2/m².an |
Les informations complémentaires
Moulin historique avec rivière et forêt sur 5 hectares