En vente Appartement 4 pièces 88 m2
| Ville | ROUEN |
| Code postal | 76100 |
| Type de bien | Appartement |
| Surface | 88 m2 |
| Nombre de pièces | 4 pièces |
| Prix | 199 900,00 € |
| Informations sur l'annonceur | |
|---|---|
| Annonce de professionnel |
|
| Agence | OXIA Rouen Voir toutes les annonces |
| Adresse | 24 rue Pierre Corneille |
| 76000 ROUEN | |
| Téléphone Fixe | 0235736103 |
| Portable |
Description
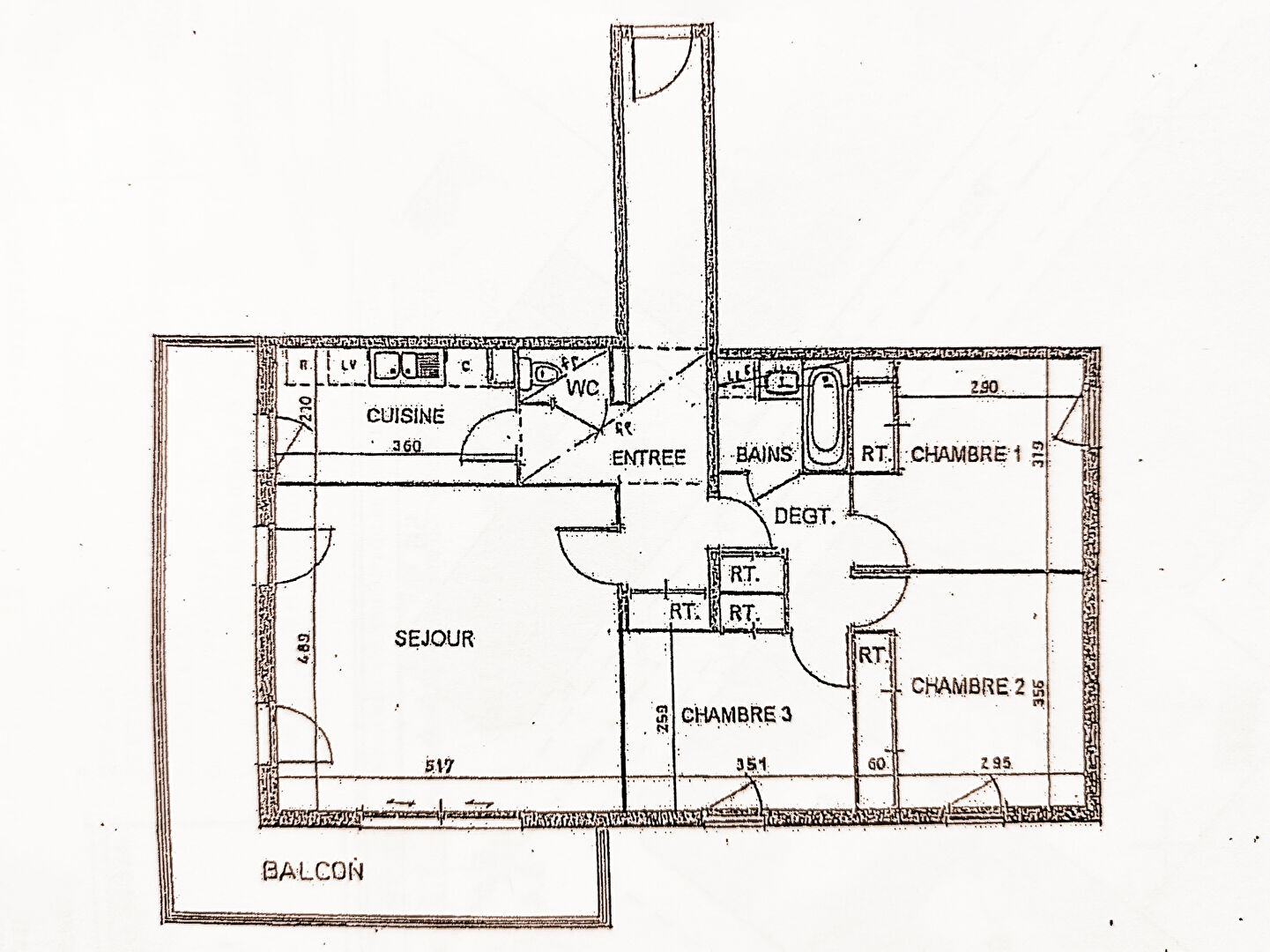
Situé à 200 m de la Clinique Mathilde, au coeur d'un secteur recherché de Rouen Rive Gauche, cet appartement F4 de 88 m² offre une organisation idéale et fonctionnelle pour une famille ou un couple en quête d'espace et de confort. Un emplacement privilégié - Bus F7 au pied de la résidence, accès rive droite en 15 minutes à pied - Proximité du Réseau Express Vélo 1 - Future ligne TEOR 5 (mise en service fin 2025- St-Sever Nouvelle Gare - Mont-Saint-Aignan) - Écoles et collèges accessibles à pied - Commerces de proximité : boulangeries, supermarchés, pharmacie, etc. Un agencement optimal (voir plan) - Entrée avec placards intégrés - Séjour spacieux de plus de 25 m² ouvrant sur un balcon de 10 m², idéalement exposé - Cuisine indépendante de 9 m² (aménagée, à personnaliser selon vos envies) - Trois chambres bien proportionnées (9 à 12 m²), toutes avec rangements intégrés - Salle de bains avec baignoire + WC séparés - Dégagement offrant de nombreux rangements (placards / penderies) Les + qui font la différence - Double place de parking privative - Deux caves pour un stockage confortable - Balcon spacieux pour vos moments de détente - Accès rapide aux grands axes routiers et au centre-ville de Rouen Pour plus d'informations et pour organiser une visite, contactez votre conseillère : Mme BERTEAU 07x66x94x99x99 Copropriété de 235 lots - dont 78 lots habitation. (Pas de procédure en cours). Charges annuelles : 3150 euros.
Les photos du bien
Les diagnostics
| Bâtiment économe |
|---|
| |
| |
| |
| 181 |
| |
| |
| |
| Bâtiment énergivore |
| en kWh.an/m².an |
| Faible émission de GES* |
|---|
| |
| |
| 29 |
| |
| |
| |
| |
| Forte émission de GES* |
| * Gaz à effet de serre en KgeqCO2/m².an |