En vente Boutique 130 m2
| Ville | Paris 2ème |
| Code postal | 75002 |
| Type de bien | Boutique |
| Surface | 130 m2 |
| Nombre de pièces | |
| Prix | 1 580 000,00 € |
| Informations sur l'annonceur | |
|---|---|
| Annonce de professionnel |
|
| Agence | Les Enfants Rouges Voir toutes les annonces |
| Adresse | 34 rue du Château d'eau |
| 75010 Paris 10ème | |
| Téléphone Fixe | 0185734000 |
Description
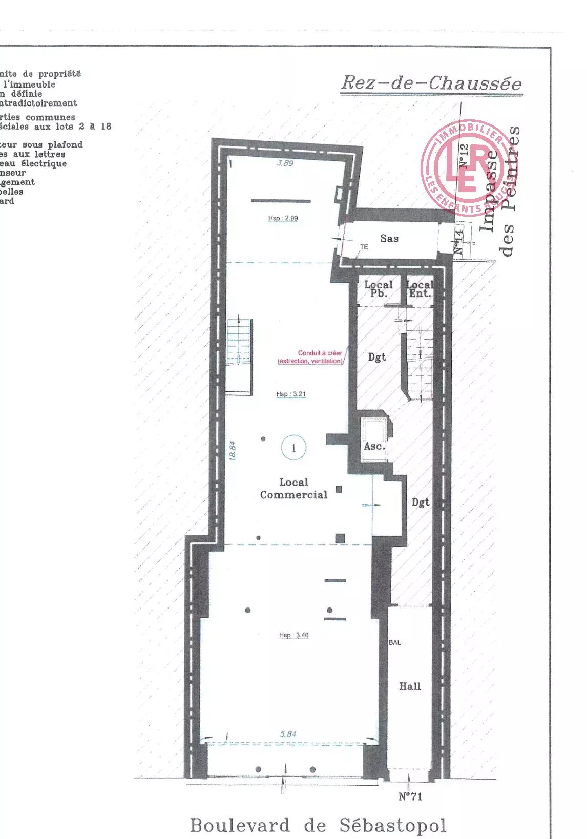
Murs commerciaux à vendre – Paris 2e / Boulevard de Sébastopol Nous vous proposons des murs commerciaux libres idéalement situés au cœur du boulevard Sébastopol, dans un bel immeuble parisien. Descriptif : Surface RDC : 89 m² Sous-sol aménageable : 41 m² Belle vitrine linéaire de 7 mètres Hauteur sous plafond : 4 mètres Autorisations copropriété : extraction extérieure autorisée Atouts : Emplacement premium à fort passage Possibilité d’installer une activité de restauration, boulangerie, traiteur, etc. Locaux vides, immédiatement disponibles Belle visibilité et façade attractive Prix de vente : 1 500 000 € net vendeur Honoraires agence : 5 % HT en sus du prix Pour toute information complémentaire ou organiser une visite, n’hésitez pas à me contacter