En vente Appartement 1 pièce 29 m2
| Ville | Val-Cenis |
| Code postal | 73500 |
| Type de bien | Appartement |
| Surface | 29 m2 |
| Nombre de pièces | 1 pièce |
| Prix | 99 500,00 € |
| Informations sur l'annonceur | |
|---|---|
| Annonce de professionnel |
|
| Agence | C&M IMMOBILIER Voir toutes les annonces |
| Adresse | 26 Place sommeiller |
| 73500 Modane | |
| Négociateur | Pascal ROBIN 73500 Val-Cenis |
| Téléphone | +33783412348 |
Description
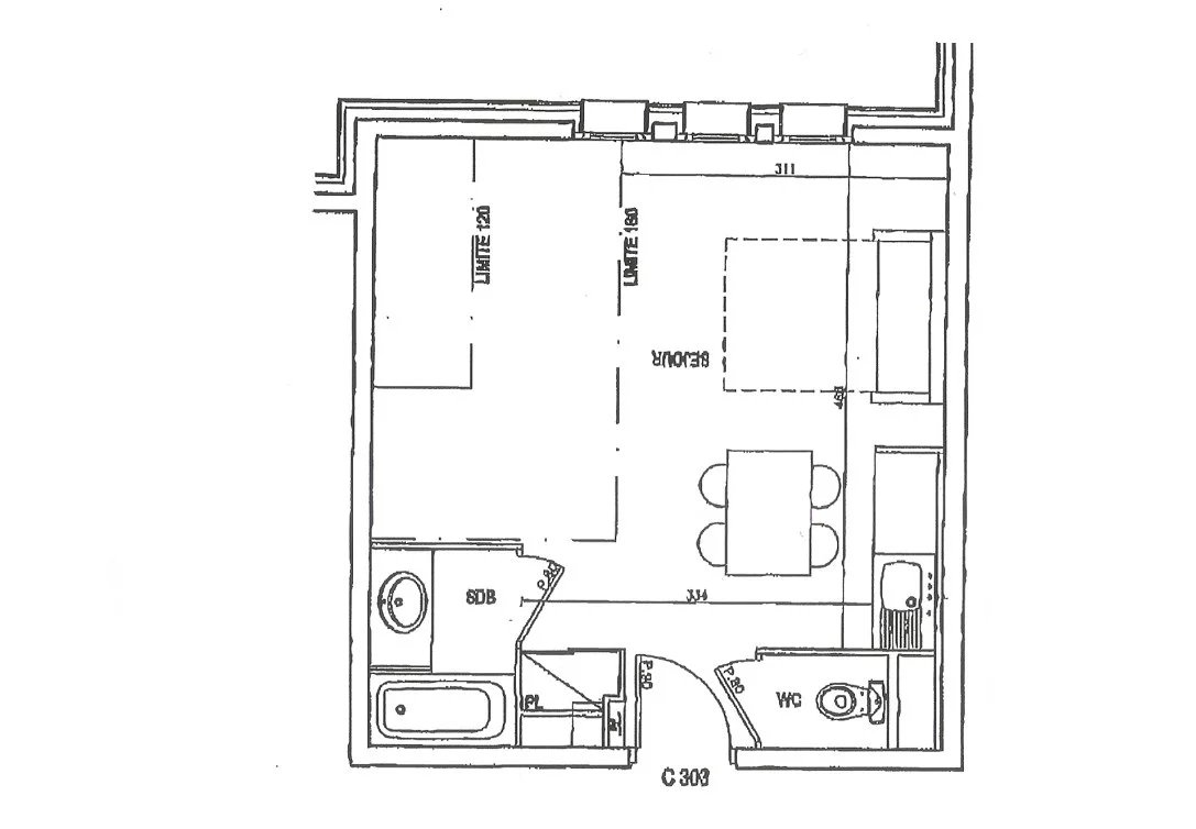
Au sein du complexe Les Alpages de Valcenis, cet appartement situé dans le chalet C est composé d'une entrée sur pièce de vie avec coin séjour (2 couchages) avec cuisine toute équipée, avec placard, une salle de bain avec baignoire et W-C . Au 3ème étage, 3 fenêtres à l'Ouest. Casier à skis. BAIL COMMERCIAL jusqu'en Septembre 2029. Pour information: La résidence est fermée pendant les hors saisons (du 30/04 au 20/06 et du 10/09 au 30/11). Des renseignements complémentaires ? N'hésitez pas ! Contactez nous au 07 83 41 23 48 ou par e-mail modane@immocm.fr Visite VIDEO : https://youtu.be/S_M1Hp6DdG4
Les photos du bien
Les diagnostics
Les informations complémentaires
Appartement VALCENIS Studio 25m2 - Les Alpages (2 pers.) - SOUS