En vente Appartement 4 pièces

Ville Paris 18ème
Code postal 75018
Type de bien Appartement
Surface
Nombre de pièces 4 pièces
Prix 849 000,00 €
Informations sur l'annonceur
Annonce de professionnel
Agence Valuo
Voir toutes les annonces
Adresse 70 rue de l’est,
92100 Nanterre
Portable 0658233947

Description

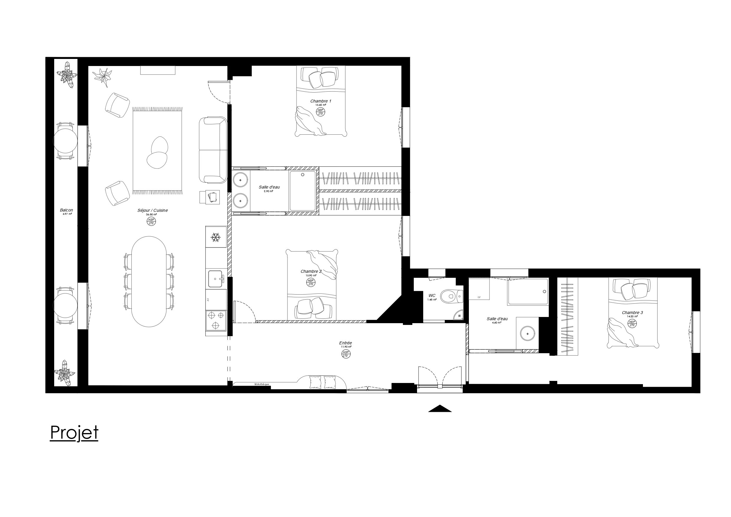
Superbe T4 de 104m2 avec balcon de 7m2 dans bel situé à MARX-DORMOY (PARIS 18ème) : En exclusivité chez Valuo - Superbe appartement familial type haussmannien T4 de 105m² situé au 5ème étage avec asc d’un très bel immeuble, avec Balcon de 7m2. Situé dans le 18ème arrondissement, à Marx-Dormoy, au pied du métro. L'appartement est à rénover. Nous vous présentons lors des visites un ou plusieurs projet(s) imaginé(s) par l'un de nos architectes. En effet, Valuo est le spécialiste de la vente d’appartement à rénover avec un accompagnement clé en main sur les travaux. Le bien a été repensé par notre architecte, ainsi vous bénéficiez du dossier complet : plans optimisés, projections 3D, devis travaux détaillé. L’appartement de type haussmannien dispose de moulures, d'un très beau parquet, de deux cheminées et de ses trumeaux. Il est traversant et baigné de lumière. Vue dégagée côté balcon, vue sur les toits de Paris côté chambres. Il est distribué comme suit : -Une belle entrée desservant d’un côté les pièces à vivre, de l’autre l’espace nuit avec ses trois belles chambres 
 -Une pièce à vivre de plus de 37m2 avec sa cuisine et espace dinatoire et le séjour 
 -Une grande suite parentale avec espace dressing et salle d’eau attenante -Deux grandes chambres avec rangement - Salle d'eau attenante L’immeuble: -⁠ Très bien tenu, avec Gardienne -⁠ DPE D Emplacement/ Accessibilité : - Au pied du métro Marx Dormoy (M12)

Les photos du bien

Les diagnostics


DPE
Energie non communiquée
GES
Faible émission de GES*
224
Forte émission de GES*
* Gaz à effet de serre en KgeqCO2/m².an