En vente Appartement 1 pièce
Ville | Paris 14ème |
Code postal | 75014 |
Type de bien | Appartement |
Surface | |
Nombre de pièces | 1 pièce |
Prix | 273 000,00 € |
Informations sur l'annonceur | |
---|---|
Annonce de professionnel |
|
Agence | Valuo Voir toutes les annonces |
Adresse | 70 rue de l’est, |
92100 Nanterre | |
Portable | 0658233947 |
Description
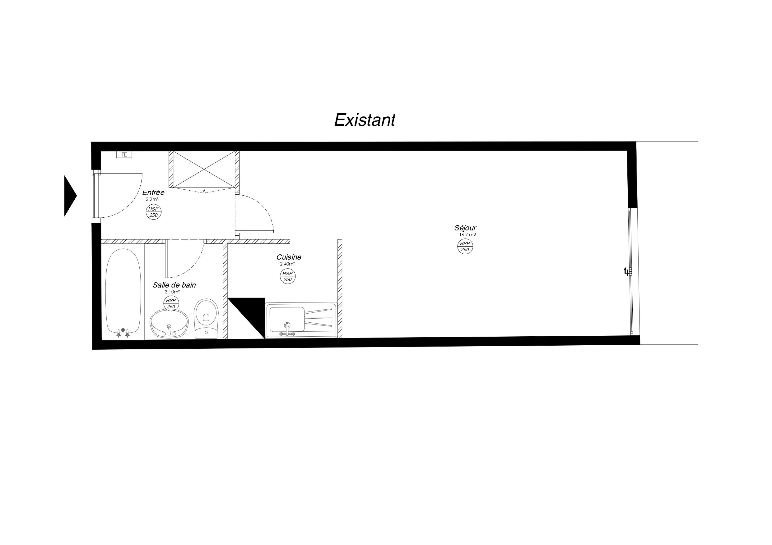
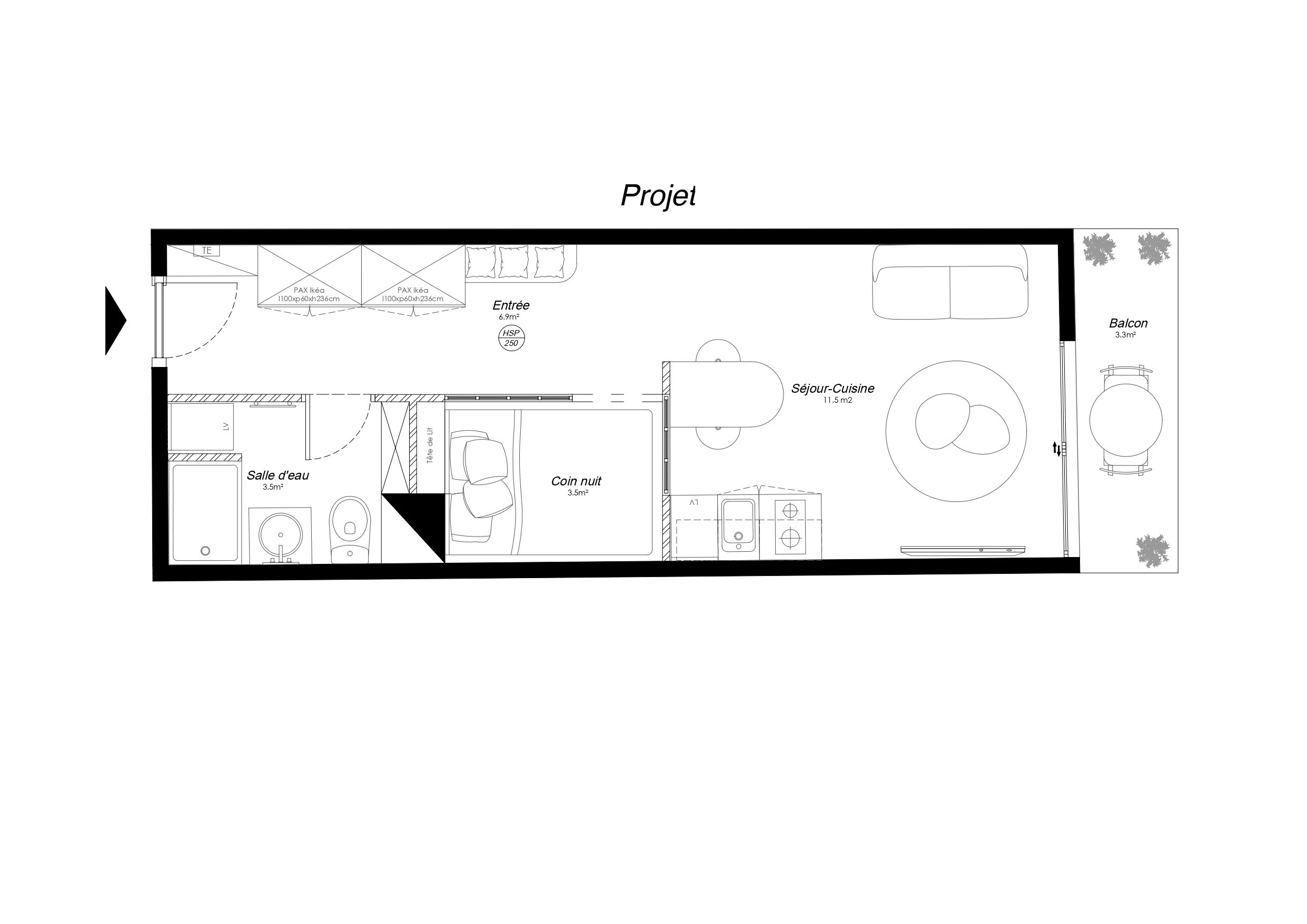
En exclusivité chez Valuo, Charmant Studio de 25m² avec balcon Situé dans le 14ème arrondissement, entre Denfert-Rochereau et Montparnasse, à 2 min à pied de la rue Daguerre L'appartement est à rénover. Nous vous présentons lors des visites un ou plusieurs projet(s) imaginé(s) par l'un de nos architectes. En effet, Valuo est le spécialiste de la vente d’appartement à rénover avec un accompagnement clé en main sur les travaux. Le bien a été repensé par notre architecte, ainsi vous bénéficiez du dossier complet : plans optimisés, projections 3D, devis travaux détaillé. L’appartement est distribué comme suit : _Une belle entrée avec rangements _Une pièce à vivre avec cuisine ouverte donnant sur le balcon _Un coin nuit avec verrière _Une salle d'eau avec WC Accessibilité : À 6 mins (400m) à pied de la station Gaïté (M 13) À 10 mins (800m) de la station de Denfert-Rochereau (M 4 et 6 - RER B)
Les photos du bien
Les diagnostics
Bâtiment économe |
---|
![]() |
![]() |
![]() |
![]() |
![]() 284 |
![]() |
![]() |
Bâtiment énergivore |
en kWh.an/m².an |
Faible émission de GES* |
---|
![]() |
![]() |
![]() |
![]() |
![]() |
![]() |
![]() 123 |
Forte émission de GES* |
* Gaz à effet de serre en KgeqCO2/m².an |