En vente Appartement 2 pièces
Ville | Paris 17ème |
Code postal | 75017 |
Type de bien | Appartement |
Surface | |
Nombre de pièces | 2 pièces |
Prix | 480 000,00 € |
Informations sur l'annonceur | |
---|---|
Annonce de professionnel |
|
Agence | Valuo Voir toutes les annonces |
Adresse | 70 rue de l’est, |
92100 Nanterre | |
Portable | 0658233947 |
Description
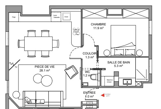
Nous sommes ravis de vous présenter en exclusivité ce superbe T2 de 49m² idéalement situé dans le 17éme arrondissement dans le charme de l’ancien à deux pas de la station Ternes et de l’arc de triomphe et à proximité de toutes les commodités. Opportunité RARE : Ce bien est à rénover, il a été entièrement repensé grâce à l'intervention de notre architecte et est proposé avec le projet travaux déjà budgétisé (à ajouter au prix de vente). L'Appartement : - Très lumineux, un grand séjour de 28m2 avec cuisine américaine et deux fenêtres donnant sur les toits parisiens. - Une chambre parentale de 11,9 m2 avec la possibilité d’intégrer de nombreux placards de rangement et penderies. - Grande salle de bain de 5,3 m2 donnant sur cours et WC indépendant. - Situé au 5ème étage sans ascenseur. - Une cave. La résidence : - Résidence construite en 1920, bien entretenue, aucun travaux à prévoir. - Excellent DPE D. Emplacement : - À 9 mins à pied de l’arc de Triomphe. - Proximité immédiate de tous les commerces (Franprix et Carrefour express à moins de 200 mètres, Boulangerie moins de 100 mètres et Avenue des champs Elysées à 800 mètres). Accessibilité : - A 500m de la station Ternes (M2) et 400m de la station Argentine (M1). Réservez dès maintenant votre visite en ligne pour ne pas manquer cette opportunité exceptionnelle ! N'hésitez pas à venir découvrir cette occasion unique de devenir propriétaire de cet appartement moderne, alliant fonctionnalité, confort et charme de l’ancien.
Les photos du bien
Les diagnostics
Bâtiment économe |
---|
![]() |
![]() |
![]() |
![]() 221 |
![]() |
![]() |
![]() |
Bâtiment énergivore |
en kWh.an/m².an |
Faible émission de GES* |
---|
![]() |
![]() |
![]() |
![]() |
![]() 48 |
![]() |
![]() |
Forte émission de GES* |
* Gaz à effet de serre en KgeqCO2/m².an |