Description
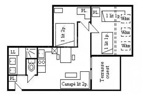
Au deuxième étage de la résidence Arolaz II, cet appartement vous offrira une vue dégagée sur les sommets, avec une exposition Ouest.
Sa terrasse sur les toits vous donne une sensation de liberté, tout en étant en plein centre station.
Localisation idéale pour les skieurs et les non-skieurs.
Il est composé de 2 chambres et peut accueillir jusqu'à 4 personnes.
Les + de ce bien :
- Accès aux pistes de ski à 140 mètres
- Accès aux commerces et restaurant au pied de la résidence
- Accès au parking public du Dou du Pont à 210 mètres (95€ pour la semaine, à régler en supplément)
- Vue imprenable sur les sommets
- Wifi
- Casier à skis
Prestations incluses :
- Accueil personnalisé
- Produits de bienvenue
- Lits faits à l'arrivée (en option l'été)
- Linge de toilette fourni (en option l'été)
- Ménage de fin de séjour
- Accès aux services de conciergerie Barnes