En vente Maison 3 pièces 96 m2
| Ville | MACON |
| Code postal | 71000 |
| Type de bien | Maison |
| Surface | 96 m2 |
| Nombre de pièces | 3 pièces |
| Prix | 199 000,00 € |
| Informations sur l'annonceur | |
|---|---|
| Annonce de professionnel |
|
| Agence | L'ADRESSE MACON Voir toutes les annonces |
| Adresse | 16 rue Lamartine |
| 71000 Macon | |
| Téléphone Fixe | 0385390044 |
Description
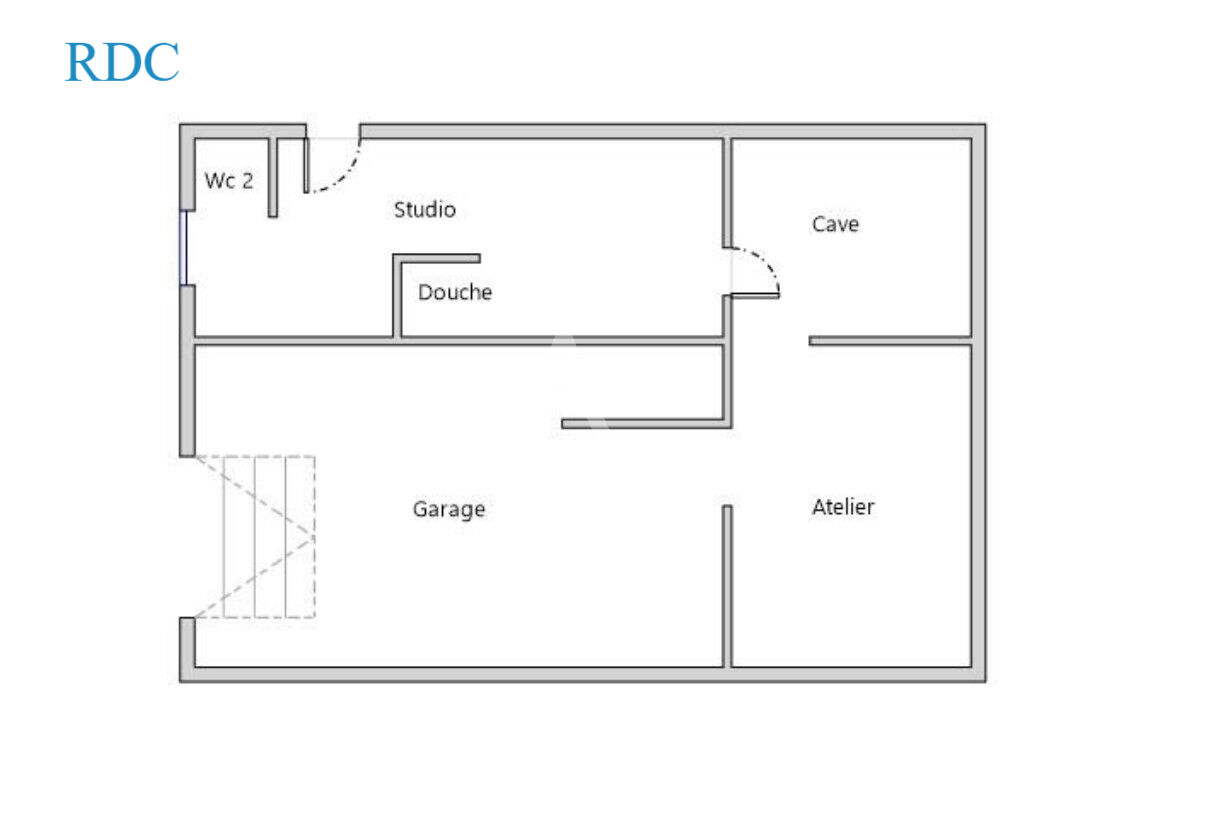
Située dans un quartier calme, cette maison sur deux niveaux offre une surface habitable de 96,38 m² (surface totale au sol : 145,89 m²). Elle se compose à l'étage d'une entrée, d'un séjour lumineux, d'une cuisine, de deux chambres et d'une salle de bains. Le sous-sol accueille un garage, un atelier, une cave et un studio indépendant, idéal pour un projet locatif ou un espace de travail. Des travaux de rénovation sont à prévoir (huisseries, volets, cuisine, peintures, sols), mais la maison présente un fort potentiel pour un projet de rénovation à votre image. Chauffage au fioul Pour plus d'informations ou organiser une visite, n'hésitez pas à nous contacter ! *Honoraires charges vendeur
Les photos du bien
Les diagnostics
DPE
| Bâtiment économe |
|---|
| |
| |
| |
| |
| 313 |
| |
| |
| Bâtiment énergivore |
| en kWh.an/m².an |
GES
| Faible émission de GES* |
|---|
| |
| |
| |
| |
| |
| 83 |
| |
| Forte émission de GES* |
| * Gaz à effet de serre en KgeqCO2/m².an |