En vente Maison 7 pièces

Ville Verbier
Pays Suisse
Type de bien Maison
Surface
Nombre de pièces 7 pièces
Prix 35 000 000,00 €
Informations sur l'annonceur
Annonce de professionnel
Agence Vue sur Lac
Voir toutes les annonces
Adresse Avenue de l'Elysée
1006 Lausanne
Téléphone Fixe +41-795110777

Description

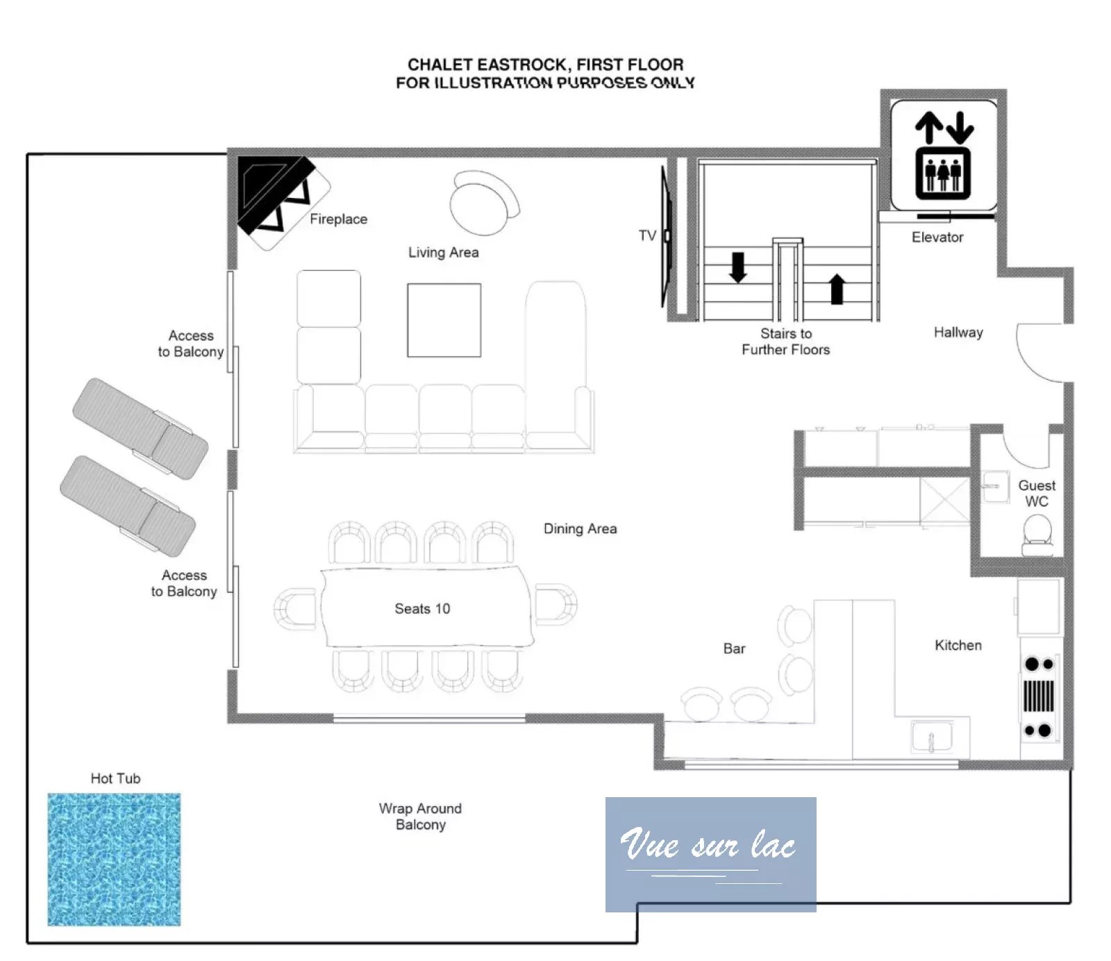
Niché au cœur de la pittoresque station de Verbier, ce somptueux chalet de 600 m² promet une expérience de vie exceptionnelle. Avec ses sept pièces spacieuses, il offre une atmosphère à la fois conviviale et intimiste, idéale pour résider en famille ou accueillir des amis. Le charme alpin traditionnel se marie harmonieusement avec des équipements modernes, sublimant ce refuge de montagne. Le salon principal, doté d'une majestueuse cheminée en pierre, forme le cœur du chalet. Cet espace invite à la détente et à la convivialité, avec des baies vitrées qui inondent la pièce de lumière naturelle tout en offrant une vue imprenable sur les sommets enneigés environnants. La cuisine équipée, ouverte sur une vaste salle à manger, est un lieu privilégié pour les gourmets souhaitant vivre une expérience culinaire inégalée. Chacune des chambres, décorées avec goût, dispose de sa propre salle de bains attenante, garantissant intimité et confort. Ce chalet, savant mélange de luxe discret et de confort alpin, est un véritable havre de paix pour quiconque rêve de nature et d'élégance. Avec un accès direct aux pistes et aux sentiers de randonnée, il est parfaitement situé pour profiter pleinement des activités de plein air en toutes saisons.

Les photos du bien

Les diagnostics


DPE
Energie non communiquée
GES
GES non communiqué