En vente Appartement 3 pièces

Ville Brignais
Code postal 69530
Type de bien Appartement
Surface
Nombre de pièces 3 pièces
Prix 260 000,00 €
Informations sur l'annonceur
Annonce de professionnel
Nom
Adresse
69006
Portable 0650093338

Description

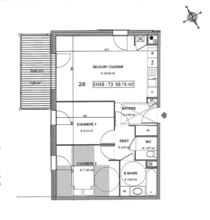
SOUS PROMESSE DE VENTE ! APPARTEMENT SOUS COMPROMIS DE VENTE ! 69530 BRIGNAIS - APPARTEMENT DE TYPE 3 AVEC BALCON ET 2 PLACES DE PARKING DANS IMMEUBLE RECENT. L’Agence 19CENT86 Immobilier & Placements vous propose cet appartement de type 3, d’une surface de 59,02 m² Carrez, situé au 2ème étage sur 3 avec ascenseur d’une copropriété de standing de 2014. Il se compose d’une pièce à vivre de 28,63 m², avec cuisine équipée, exposée Nord-Ouest, donnant sur le balcon de 8,18 m². Le coin nuit est séparé et dispose de 2 chambres (12,02 m² et 9,27 m²), d’une salle de bains et WC séparé. Deux places de parking en sous-sol situées côte à côte, pouvant être fermées, viennent le compléter. Idéalement situé au calme, à proximité des commerces, des écoles et des transports. Bien soumis au régime de la copropriété avec 64 lots dont 25 appartements. Budget annuel charges 1717,68 euros soit 143 euros par mois – Consommations énergétiques : C (74) / GES : C (13). Estimation des coûts annuels d’énergie du logement entre 480 euros et 710 euros par an - Année de référence : 2021, 2022, 2023 - Honoraires charge vendeur - Pas de procédure en cours. Les informations sur les risques auxquels ce bien est exposé sont disponibles sur le site Géorisques : www.georisques.gouv.fr - Pour plus d'informations, merci de contacter Nicolas MAIA, par mail ou par téléphone.

Les photos du bien

Les diagnostics


DPE
Energie non communiquée
GES
Faible émission de GES*
74
Forte émission de GES*
* Gaz à effet de serre en KgeqCO2/m².an