En vente Maison 6 pièces 121 m2
| Ville | SAINT GERMAIN EN LAYE |
| Code postal | 78112 |
| Type de bien | Maison |
| Surface | 121 m2 |
| Nombre de pièces | 6 pièces |
| Prix | 810 000,00 € |
| Informations sur l'annonceur | |
|---|---|
| Annonce de professionnel |
|
| Agence | AIB Mareil Marly - AIB Voir toutes les annonces |
| Adresse | 4 RUE DU BELVEDERE |
| 78750 MAREIL MARLY | |
| Téléphone Fixe | 0139582338 |
| Portable |
Description
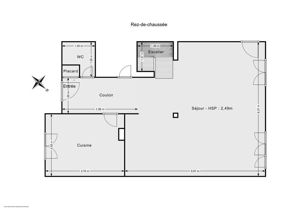
Situation idéale, dans un bel environnement calme et agréable, au sein d'un secteur privilégié de Fourqueux (Terres fleuries), proche du lycée international de Saint Germain-en-Laye, proche du golf et accès A13/A14 ,à quelques minutes des commerces et de toutes commodités, bus à 1 min à pied. Maison construite en 1986, d'une superficie d'environ 121m² sur 390m² de terrain. Entrée avec rangement, séjour/salle à manger, cuisine indépendante équipée, wc et lave-mains. Etage : palier, suite parentale avec salle de bain, 3 chambres avec placards, salle de douche, wc. Garage. Double vitrage. Chauffage électrique. (3.18 % honoraires TTC à la charge de l'acquéreur.)
Les photos du bien
Les diagnostics
DPE
| Bâtiment économe |
|---|
| |
| |
| |
| |
| 270 |
| |
| |
| Bâtiment énergivore |
| en kWh.an/m².an |
GES
| Faible émission de GES* |
|---|
| |
| 8 |
| |
| |
| |
| |
| |
| Forte émission de GES* |
| * Gaz à effet de serre en KgeqCO2/m².an |