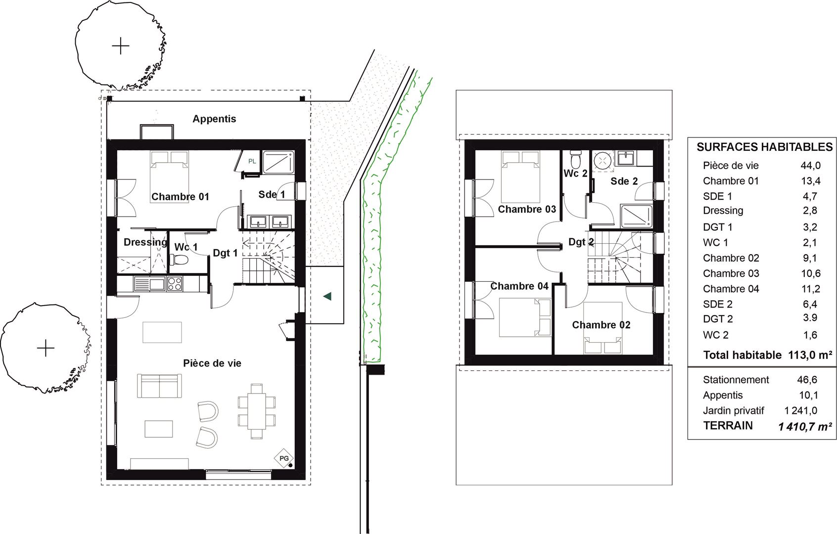
En vente Maison 5 pièces 113 m2
| Ville | LE TAILLAN MEDOC |
| Code postal | 33320 |
| Type de bien | Maison |
| Surface | 113 m2 |
| Nombre de pièces | 5 pièces |
| Prix | 475 000,00 € |
| Informations sur l'annonceur | |
|---|---|
| Annonce de professionnel |
|
| Agence | Agence BIP Voir toutes les annonces |
| Adresse | |
| 33500 LIBOURNE | |
| Négociateur | Agence BIP 33320 LE TAILLAN MEDOC |
| Téléphone | 05.57.10.24.24 |
Description
Jolie maison neuve, T5, de 113 m² habitables, sur un terrain de 1412 m², à 500 m d'un centre commercial et du collège du Taillan. Elle se compose, au rez-de-chaussée d'une pièce de vie de 44 m², d'une suite parentale avec salle d'eau et dressing et d'un wc. À l'étage, de trois chambres, d'une salle d'eau et d'un wc. Conforme à la règlementation RE2020, le chauffage est assuré par une pompe à chaleur triple service et la production d'eau chaude par un ballon thermodynamique connecté à la pompe à chaleur. Un poêle à granulés apporte un confort supplémentaire. Un appentis de 10 m² sur le côté de la maison permet d'abriter des deux roues ou des matériels divers. La maison se situe, en bout de rue, dans une copropriété horizontale, de huit maisons et n'est pas mitoyenne. Elle jouit d'un environnement calme. Le parking relais du tram D, vers Bordeaux-centre est à 5 minutes en voiture. La taxe foncière sera de 2100 euros et les charges de 20 euros par mois. Les honoraires sont à la charge du vendeur. Elle sera disponible en mars 2027. Les informations sur les risques auxquels de bien est exposé sont disponibles sur le site Géorisques: www.georisque.gouv.fr