En vente Terrain

Ville Monticello
Code postal 20220
Type de bien Terrain
Surface
Nombre de pièces
Prix 475 000,00 €
Informations sur l'annonceur
Annonce de professionnel
Agence Coldwell Banker Allegrini Realty
Voir toutes les annonces
Adresse 9 Avenue Piccioni
20220 L'Île-Rousse
Téléphone Fixe 0495331787

Description

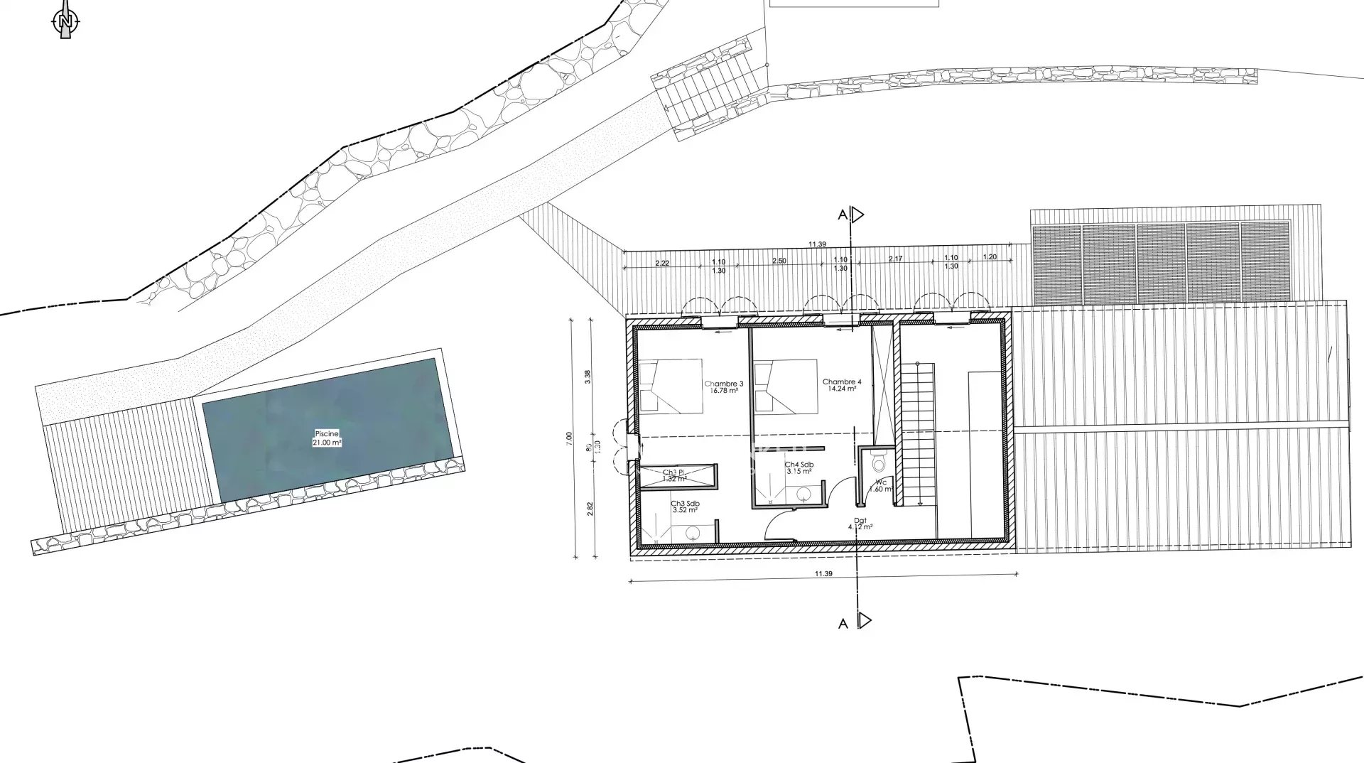
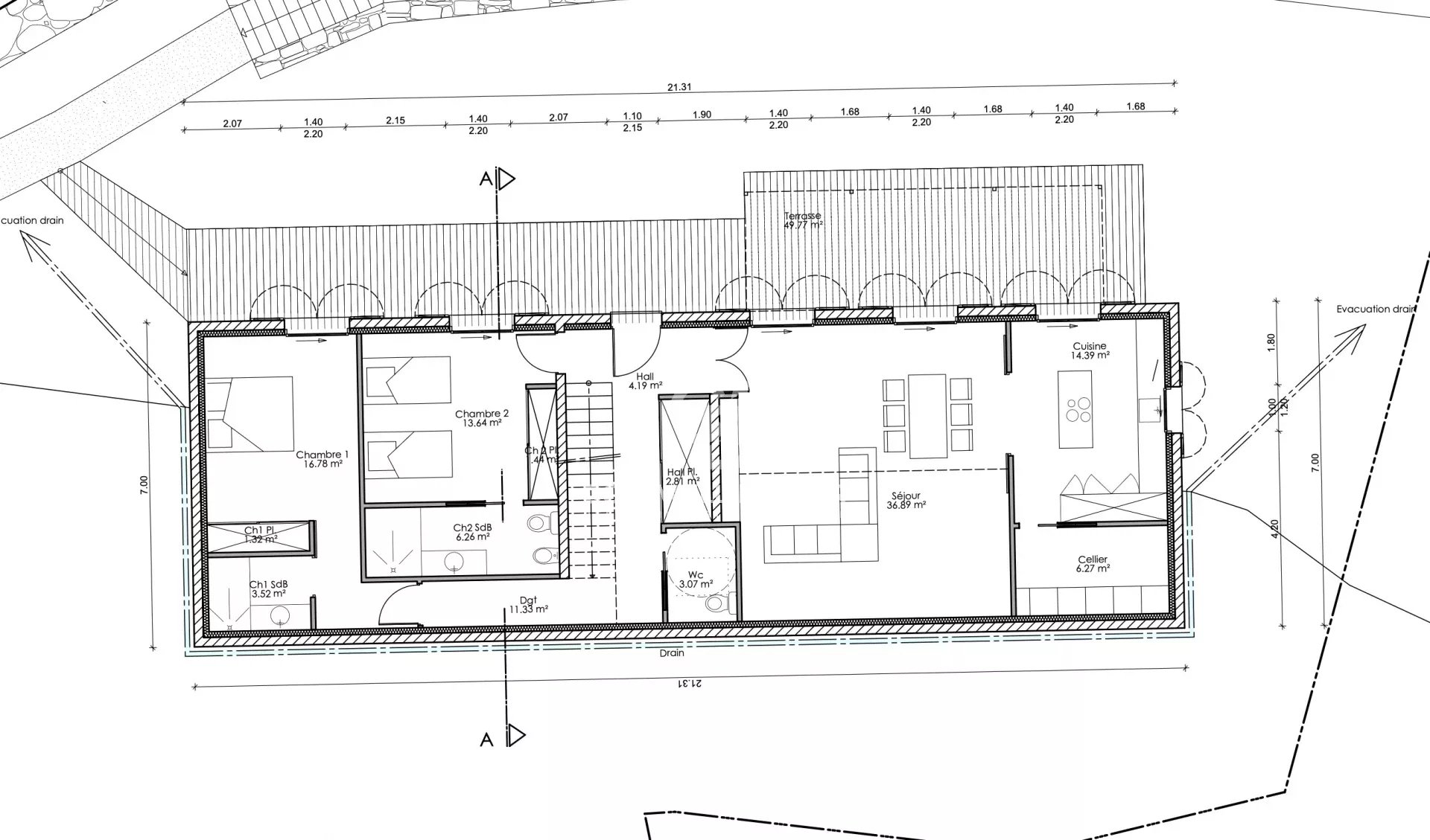
Situé sur les hauteurs de Monticello, ce magnifique terrain d’environ 1 500 m² offre un cadre exceptionnel, niché en haut de la montagne dans un environnement préservé et sans vis-à-vis. En lisière de zones non constructibles, le terrain bénéficie d’un calme absolu, entouré par la nature, à l’abri de toute nuisance future. Sa position dominante lui permet de jouir d’une vue mer panoramique à couper le souffle. Le projet de construction, avec permis de construire obtenu et purgé de tout recours, prévoit une maison de 166,64 m² habitables en R+1, conçue pour s’intégrer harmonieusement dans le paysage : Niveau principal (121,91 m²) : une grande pièce de vie, une cuisine, deux chambres, deux salles de bain, un WC invité, une terrasse de 50 m² Étage (44,73 m²) : deux chambres supplémentaires avec leur salle de bain Piscine intégrée au projet Le permis a été validé par l’Architecte des Bâtiments de France, avec possibilité de modifications légères si souhaité. Ce terrain rare réunit tous les atouts : vue, calme, intimité, potentiel, et un projet architectural déjà prêt à être lancé. Un bien idéal pour un projet de résidence principale ou secondaire haut de gamme, dans l’un des secteurs les plus recherchés de Balagne. Bien rare sur le secteur. Roxane Pellegrini roxane.pellegrini@coldwellbanker.fr 06 01 29 10 00

Les photos du bien

Les diagnostics