En vente Maison 8 pièces
| Ville | Le Touquet-Paris-Plage |
| Code postal | 62520 |
| Type de bien | Maison |
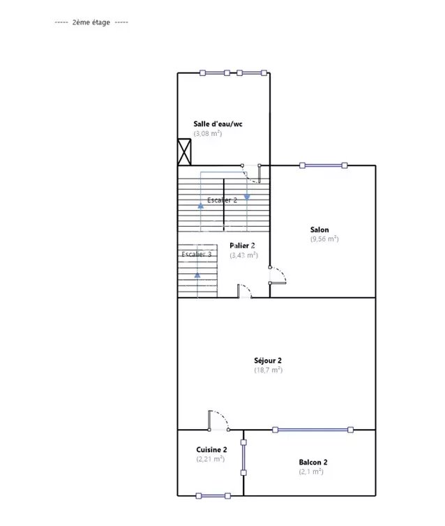
| Surface | |
| Nombre de pièces | 8 pièces |
| Prix | 810 000,00 € |
| Informations sur l'annonceur | |
|---|---|
| Annonce de professionnel |
|
| Nom | |
| Adresse | |
| 62520 | |
| Téléphone Fixe | 0750347642 |
Description
À 300m de la plage et proche marché, villa au fort potentiel offrant plusieurs possibilités pour l'acquéreur : - rénovation complète à prévoir, - autres possibilités envisageables à définir, Logement à consommation énergétique excessive: classe F Une rénovation énergétique est à prévoir. Les informations sur les risques auxquels ce bien est exposé sont disponibles sur le site Géorisques : www.georisques.gouv.fr
Les photos du bien
Les diagnostics
DPE
| Bâtiment économe |
|---|
| |
| |
| |
| |
| |
| 382 |
| |
| Bâtiment énergivore |
| en kWh.an/m².an |
GES
| Faible émission de GES* |
|---|
| |
| |
| |
| |
| |
| 75 |
| |
| Forte émission de GES* |
| * Gaz à effet de serre en KgeqCO2/m².an |