En vente Appartement 4 pièces 74 m2
| Ville | PARIS | 
| Code postal | 75018 | 
| Type de bien | Appartement | 
| Surface | 74 m2 | 
| Nombre de pièces | 4 pièces | 
| Prix | 670 000,00 € | 
| Informations sur l'annonceur | |
|---|---|
| Annonce de professionnel | |
| Agence | L'Immobilier par Charly Voir toutes les annonces | 
| Adresse | |
| 75018 Paris | |
| Téléphone Fixe | 0176210728 | 
| Portable | 0642578973 | 
Description
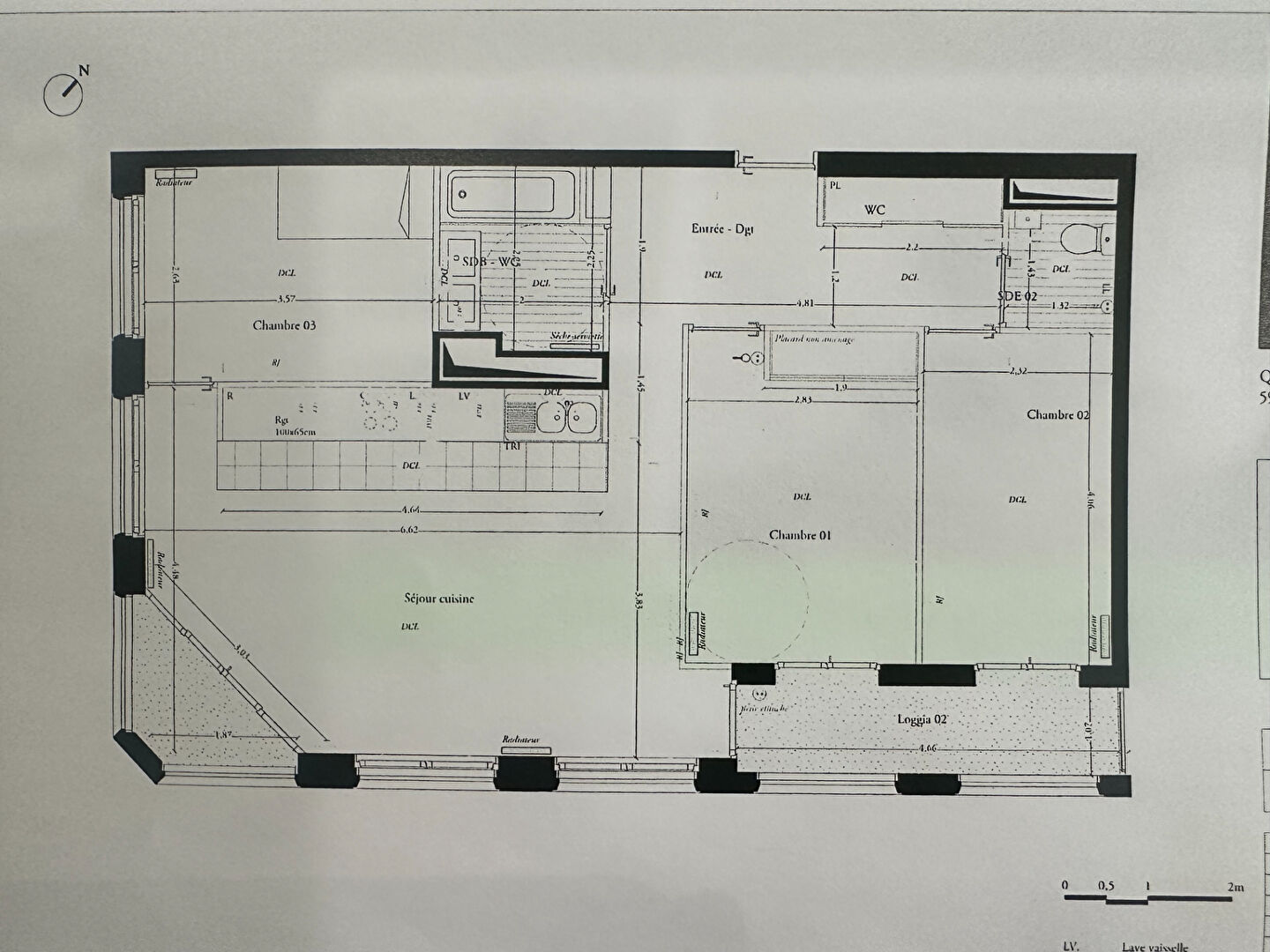
Au coeur du quartier Chapelle International, Dans un immeuble construit en 2022, superbe 4 pièces de 74 m2 + 2 loggias de 7,5 m2. Il se compose d'une entrée avec placard, d'un superbe séjour de 29 m2 avec cuisine aménagée et équipée, de 3 chambres, d'une salle de bain et d'un water-closet indépendant. Vous serez immédiatement charmé par l'espace, la succession de fenêtres panoramiques et le confort du moderne. Possibilité d'une place de parking et cave (cellier). Proximité immédiate des transports 200 mètres de la ligne 12 porte de la chapelle et bus 38 - Tram T3 à 400 mètres via accès Bd Ney, autoroute A1. Terrains de basket, terrain de tennis, 2 crèches et 1 école, Parc Chapelle Charbon commerces de proximité dans un rayon de 2 minutes à pied. COUP DE COEUR (3.08 % honoraires TTC à la charge de l'acquéreur.) Copropriété de 217 lots - dont 129 lots habitation. Charges annuelles : 2716 euros.
Les photos du bien
Les diagnostics
| Bâtiment économe | 
|---|
|   19 | 
|   | 
|   | 
|   | 
|   | 
|   | 
|   | 
| Bâtiment énergivore | 
| en kWh.an/m².an | 
| Faible émission de GES* | 
|---|
|   | 
|   | 
|   19 | 
|   | 
|   | 
|   | 
|   | 
| Forte émission de GES* | 
| * Gaz à effet de serre en KgeqCO2/m².an | 
 
 
												 
 
												 
 
												 
 
												 
 
												 
 
												 
 
												 
 
												 
 
												 
 
												 
 
												