En vente Appartement 3 pièces 69 m2
Ville | COURBEVOIE |
Code postal | 92400 |
Type de bien | Appartement |
Surface | 69 m2 |
Nombre de pièces | 3 pièces |
Prix | 379 000,00 € |
Informations sur l'annonceur | |
---|---|
Annonce de professionnel |
|
Agence | BRACKE IMMOBILIER COURBEVOIE Voir toutes les annonces |
Adresse | 85 Rue De Bezons |
92400 Courbevoie | |
Téléphone Fixe | 0141168000 |
Description
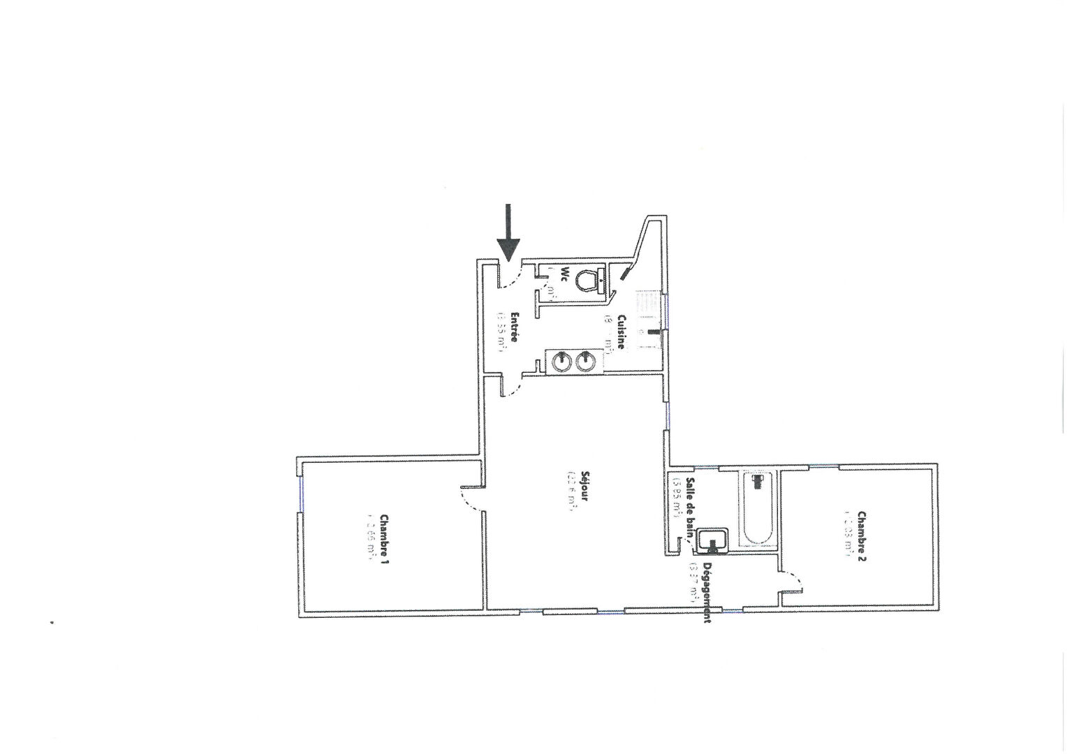
COURBEVOIE NORMANDIE APPARTEMENT 3 PIECES DE 69M² DANS UN BEL IMMEUBLE 1930 AVEC ASCENSEUR. Entrée, cuisine, séjour de 23m² exposé SUD, 2 chambres, salle de bain, wc séparés. 2 caves en sous-sol. Chauffage et eau chaude individuels gaz. CLAIR ET ENSOLEILLÉ avec une vue dégagée. 8mn à pied de LA DÉFENSE. 4MN DES COMMERCES ET DES ECOLES. Copropriété de 48 lots - dont 19 lots habitation. (Pas de procédure en cours). Charges annuelles : 1796 euros.
Les photos du bien
Les diagnostics
DPE
Bâtiment économe |
---|
![]() |
![]() |
![]() |
![]() |
![]() |
![]() 357 |
![]() |
Bâtiment énergivore |
en kWh.an/m².an |
GES
Faible émission de GES* |
---|
![]() |
![]() |
![]() |
![]() |
![]() |
![]() 78 |
![]() |
Forte émission de GES* |
* Gaz à effet de serre en KgeqCO2/m².an |