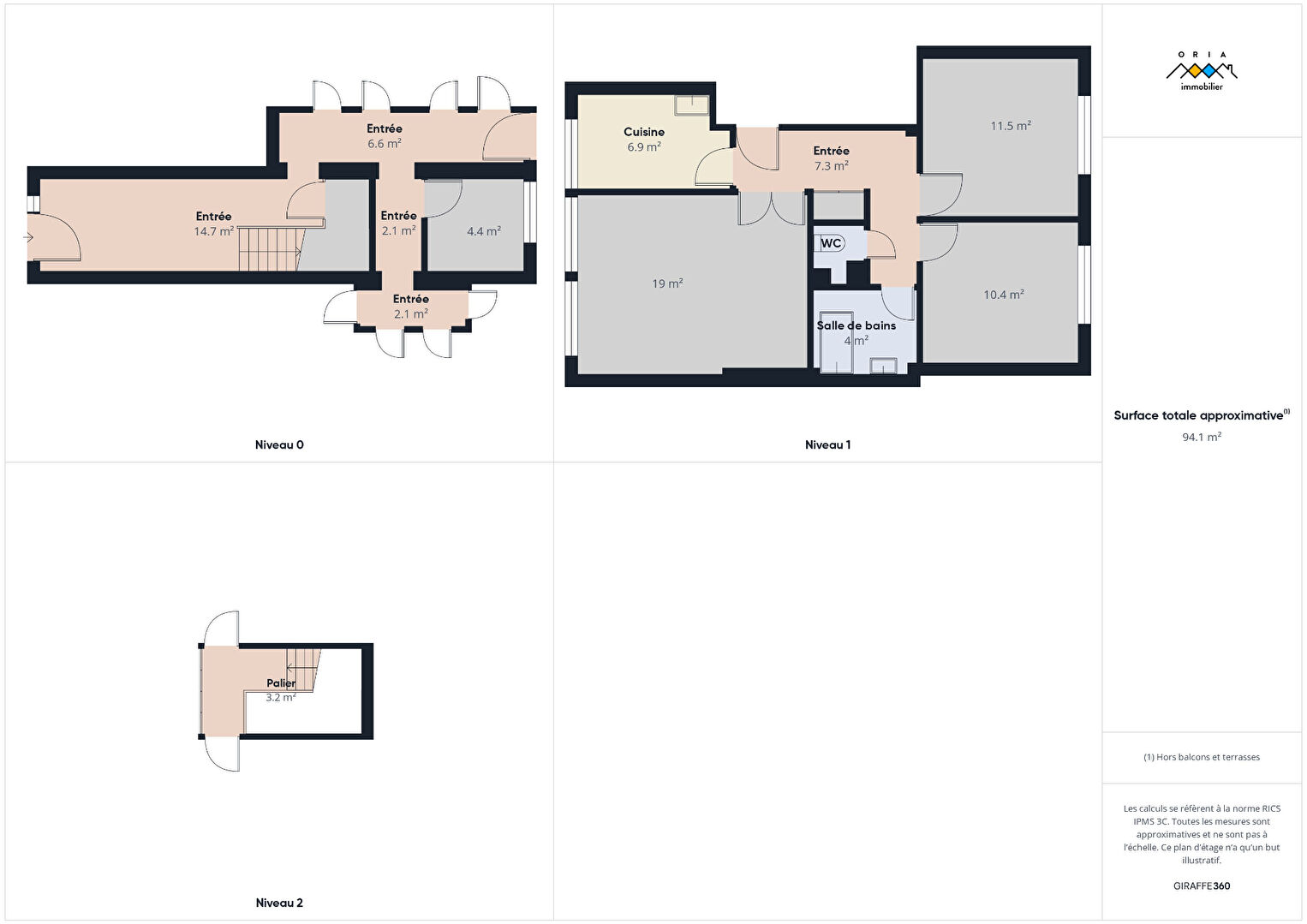
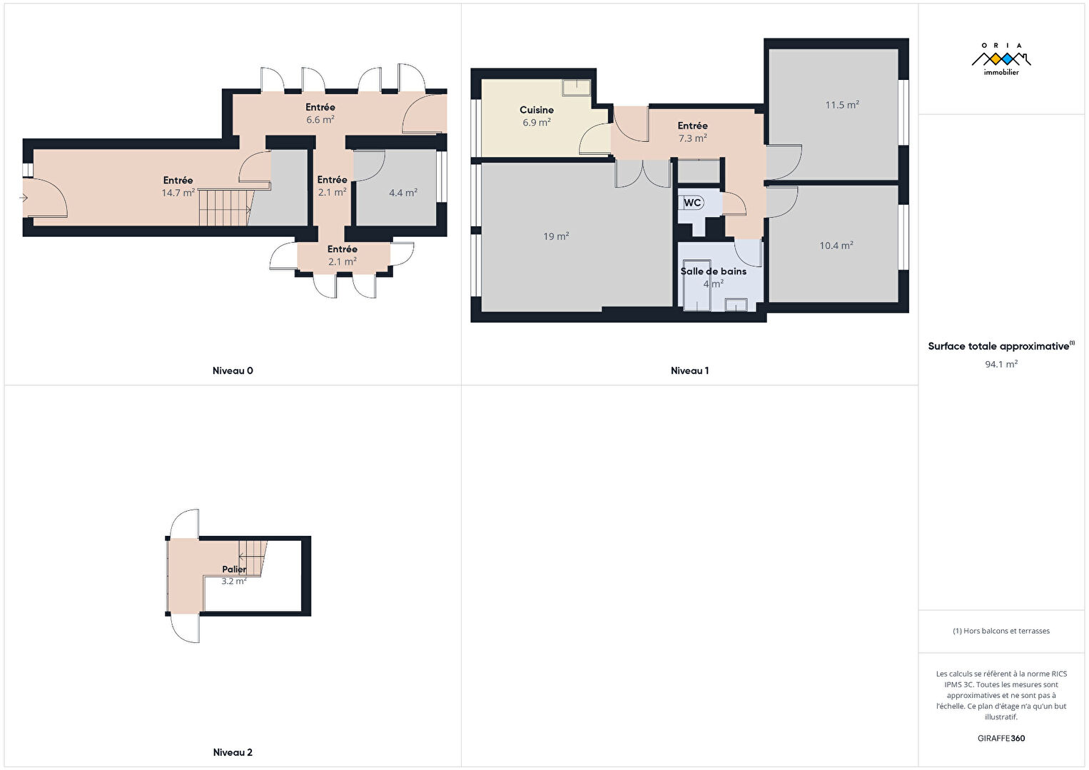
En vente Immeuble 12 pièces 240 m2
| Ville | SAINT MAX |
| Code postal | 54130 |
| Type de bien | Immeuble |
| Surface | 240 m2 |
| Nombre de pièces | 12 pièces |
| Prix | 472 500,00 € |
| Informations sur l'annonceur | |
|---|---|
| Annonce de professionnel |
|
| Agence | ORIA immobilier Pulnoy Voir toutes les annonces |
| Adresse | |
| 54425 PULNOY | |
| Téléphone Fixe | 0383219751 |
Description
ORIA IMMOBILIER PULNOY vous présente : Sur la commune de Saint-Max, à 50 mètres du Tram et de l'avenue Carnot et 10 minutes de Nancy Immeuble avec 4 appartements T3 de 63 m² chacun, 4 garages, 4 caves et 4 celliers ainsi qu'une cour. Possibilité de faire des duplex sur les 2 appartements du 2 étages afin d'augmenter la surface locative. 3 appartements loués depuis plusieurs années, 1 de libre. Chauffage individuelle au gaz de ville. Opportunité rare ! A visiter sans tarder... Les informations sur les risques auxquels ce bien est exposé sont disponibles sur le site Géorisques : www.georisques.gouv.fr Vincent BOURDON (EI) Agent Commercial - Numéro RSAC : 981 528 151 - NANCY.
Les photos du bien
Les diagnostics
DPE
| Bâtiment économe |
|---|
| |
| |
| |
| |
| 319 |
| |
| |
| Bâtiment énergivore |
| en kWh.an/m².an |
GES
| Faible émission de GES* |
|---|
| |
| |
| |
| |
| 70 |
| |
| |
| Forte émission de GES* |
| * Gaz à effet de serre en KgeqCO2/m².an |