Description
SCEAUX - Robinson
Avenue Jules Guesde – Proximité immédiate RER B Robinson
EXCLUSIVITE VICTORINE IMMOBILIER
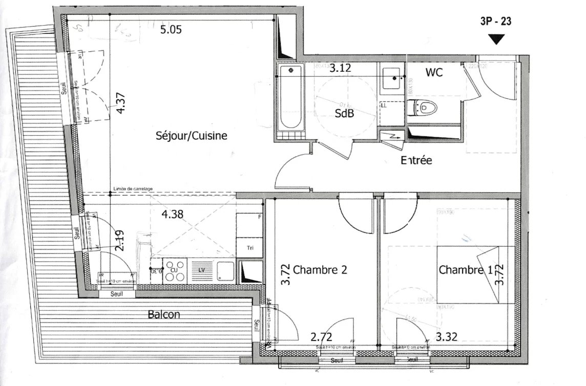
Nous vous proposons à la vente un bel appartement lumineux et en excellent état de 70,70 m² Loi Carrez avec un large balcon filant de 13 m², situé au 2ème étage avec ascenseur d’une résidence récente de standing très bien entretenue.
Description du bien :
Entrée
Séjour de 31m2 baigné de lumière ouvert sur une cuisine (Schmidt) , donnant sur un large balcon exposé SUD
2 chambres, dont une avec accès direct à la terrasse
Salle de bains
WC séparés
2 places de parking en enfilade au 1er sous-sol (accès par ascenseur) complète ce bien.
2 locaux vélos collectifs/ Fibre optique installée
Informations financières :
Charges : 220 €/mois (eau chaude, eau froide, chauffage collectif gaz, ascenseur, parking)
Chauffe-eau thermodynamique
Taxe foncière : 2063€
DPE : C (97) – GES : C (12)
Consommation énergie finale : 70 kWh/m²/an
Estimation des coûts annuels : 580 € – 830 €
Localisation et transports :
RER B Robinson : 1 min à pied
Bus 192, 128, 390 à proximité
Commerces de bouche de la rue Houdan
Espaces verts : Parc Henri-Cellier, Arboretum
✨ Résidence idéale pour une famille, un couple ou un investissement, offrant à la fois confort, modernité et une localisation recherchée au cœur de Sceaux, à deux pas de Paris.
Prix : 483 000€ FAI dont 5% TTC d’honoraires à la charge de l’acquéreur
460 000€ prix net vendeur
CONTACT : FLORENCE GIRAUD 06 43 33 06 56
Victorine Immobilier – SASU - RCS de Lyon - SIREN 838 606 945 – Capital de 3000euros
Mail : TVA FR38838606945 CPI 6901 2018 000 031 034
Non détention de fonds