En vente Appartement 5 pièces 120 m2
| Ville | VOEGTLINSHOFFEN |
| Code postal | 68420 |
| Type de bien | Appartement |
| Surface | 120 m2 |
| Nombre de pièces | 5 pièces |
| Prix | 210 000,00 € |
| Informations sur l'annonceur | |
|---|---|
| Annonce de professionnel |
|
| Agence | COLMARÎMMO Voir toutes les annonces |
| Adresse | |
| 68000 Colmar | |
| Téléphone Fixe | 0369850150 |
Description
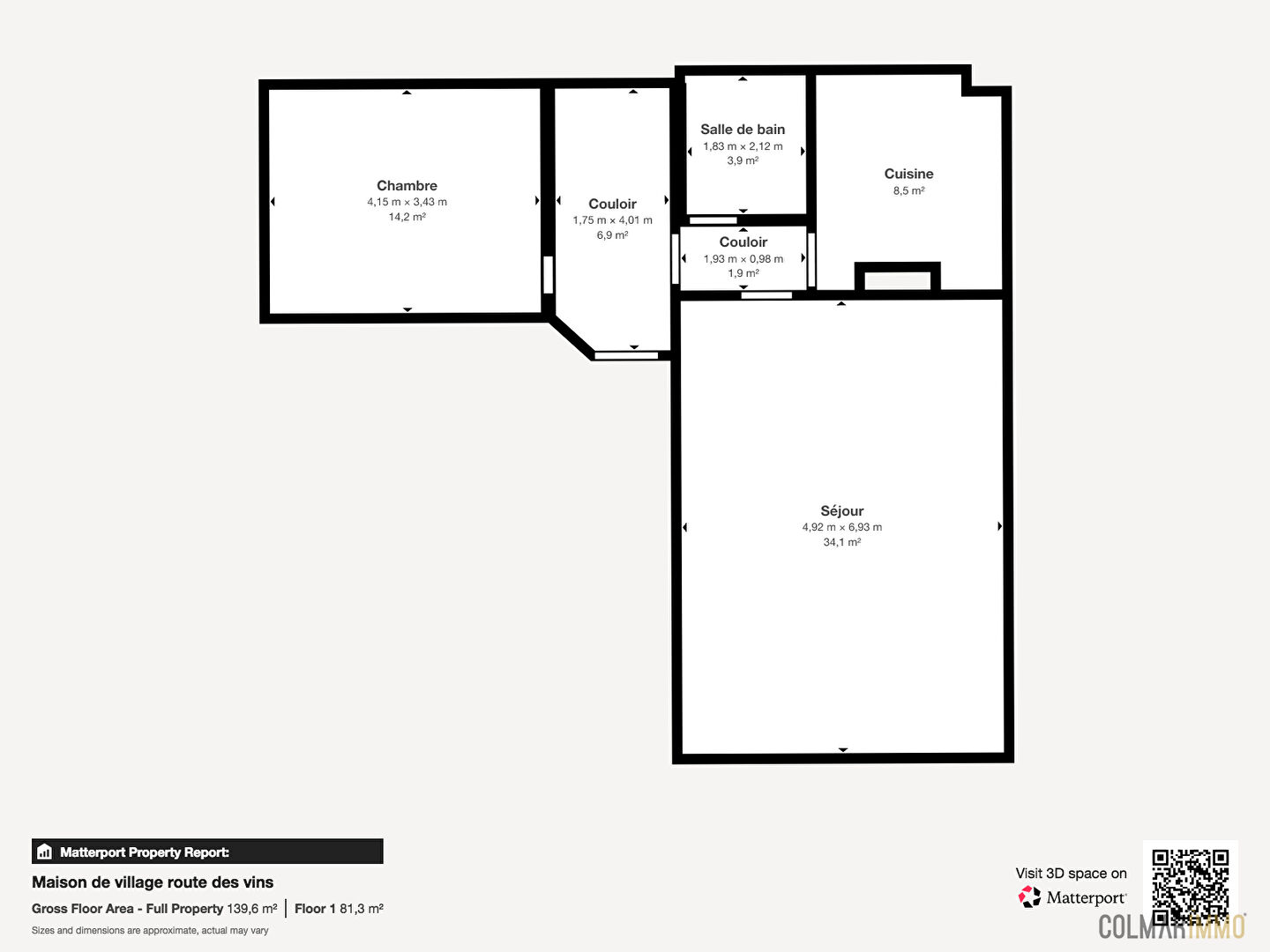
Située au coeur du village de Voegtlinshoffen, cette maison datant des années 1800 séduit par son authenticité et ses beaux volumes. Élevée sur trois niveaux et d'une surface habitable d'environ 120 m² au sol, elle offre un cadre chaleureux et fonctionnel. Au rez-de-chaussée, vous trouverez un sous-sol complet comprenant cave, buanderie, garage et espace de stockage. Au 1er niveau, une terrasse vous accueille avant de découvrir une entrée desservant une chambre, un couloir, une salle d'eau avec WC, une cuisine indépendante et un vaste salon-séjour lumineux. A l'étage, un palier dessert deux chambres supplémentaires, dont une avec espace dressing, un dégagement et une salle d'eau avec toilettes. Idéal pour un premier achat ou pour un projet de résidence secondaire (6.60 % honoraires TTC à la charge de l'acquéreur.)