En vente Maison 10 pièces
| Ville | Grimaud | 
| Code postal | 83310 | 
| Type de bien | Maison | 
| Surface | |
| Nombre de pièces | 10 pièces | 
| Prix | 1 765 000,00 € | 
| Informations sur l'annonceur | |
|---|---|
|  Annonce de professionnel | 
															|
| Agence |  Med-Estates Saint Tropez Voir toutes les annonces  | 
														
| Adresse | 9 Bd Louis Blanc Espace des Lices | 
| 83990 Saint-Tropez | |
| Téléphone Fixe | 0494490928 | 
Description
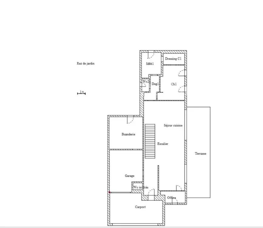
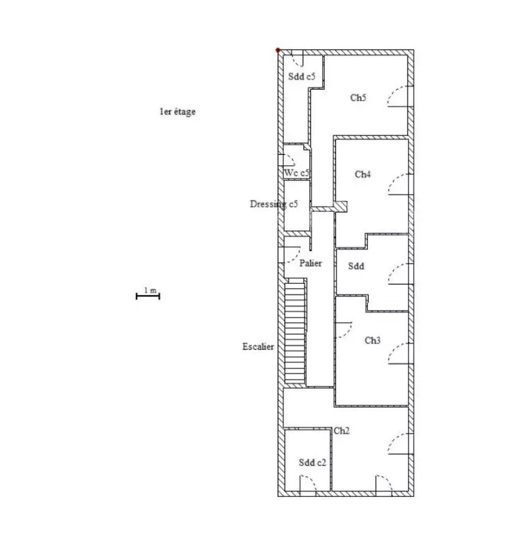
La villa récente (2018) environ de 195 m² est située sur un terrain verdoyant de 2500 m². Il y a une piscine chauffée et un garage.Hall d'entrée accueillant avec toilettes invités, salon avec cheminée, salle à manger, cuisine équipée avec garde-manger. Au rez-de-chaussée se trouve la chambre principale avec salle de bain complète et dressing. Au premier étage, il y a 2 chambres en suite avec salle de douche et toilettes et 2 chambres partageant une grande salle de douche et toilettes. En outre, la villa dispose d'un garage, d'une deuxième buanderie, d'une piscine chauffée, d'un jardin potager et d'un terrain de pétanque. Résumé :- 5 chambres- 4 salles de bains- Surface 195 m²- Taille du terrain 2500m²- Garage- Année de construction 2018 Veuillez nous contacter pour de plus amples informations ou pour planifier une visite. Les informations sur les risques auxquels ce bien est exposé sont disponibles sur le site Géorisques
Les photos du bien
Les diagnostics
| Bâtiment économe | 
|---|
|          47          | 
|          | 
|          | 
|          | 
|          | 
|          | 
|          | 
| Bâtiment énergivore | 
| en kWh.an/m².an | 
| Faible émission de GES* | 
|---|
|          1          | 
|          | 
|          | 
|          | 
|          | 
|          | 
|          | 
| Forte émission de GES* | 
| * Gaz à effet de serre en KgeqCO2/m².an |