En vente Appartement 4 pièces 91 m2

Ville APACH
Code postal 57480
Type de bien Appartement
Surface 91 m2
Nombre de pièces 4 pièces
Prix 289 000,00 €
Informations sur l'annonceur
Annonce de professionnel
Agence LA CLANCHE IMMOBILIER Koenigsmacker
Voir toutes les annonces
Adresse 108 RUE DE THIONVILLE
57970 KOENIGSMACKER
Téléphone Fixe 0382873932
Portable

Description

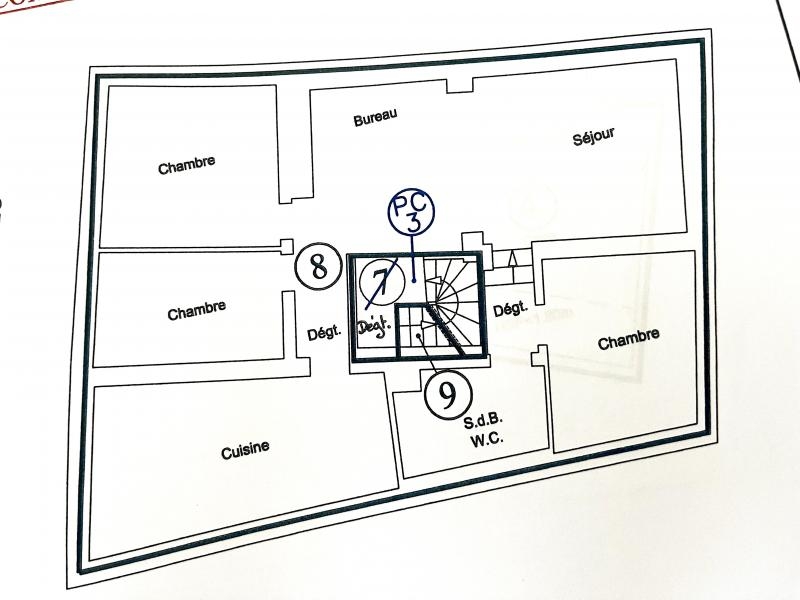
Situé à Apach, appartement de type F4+ entièrement rénové, d'une surface carrez de 91 m2, situé au 1er étage d'un immeuble comprenant 3 appartements. Le logement se compose d'un vaste salon séjour lumineux de 29,72 m2, une cuisine individuelle entièrement équipée de 20 m2, trois chambres à coucher ainsi qu'une salle de bains avec douche à l'italienne et wc. En annexe, un jardin de 200 m2 en bord de ruisseau offrant un cadre de vie chaleureux, ainsi que deux places de parking sur l'avant du bâtiment. Les travaux de cet appartement viennent d'être achevés. L'immeuble bénéficie d'un syndic bénévole : Faibles charges !! Ce bien calme et lumineux offre une vue dégagée sur la nature, A SAISIR !! Contact : Charlène Thomas : 06 75 28 26 91. Les informations sur les risques auxquels ce bien est exposé sont disponibles sur le site Géorisque www.georisque.gouv.fr Copropriété de 3 lots ().

Les photos du bien

Les diagnostics


DPE
Energie non communiquée
GES
Faible émission de GES*
6
Forte émission de GES*
* Gaz à effet de serre en KgeqCO2/m².an