En vente Immeuble 12 pièces 640 m2

Ville VERSAILLES
Code postal 78000
Type de bien Immeuble
Surface 640 m2
Nombre de pièces 12 pièces
Prix 2 335 000,00 €
Informations sur l'annonceur
Annonce de professionnel
Agence Cabinet Mansart
Voir toutes les annonces
Adresse 28 rue Royale
78000 VERSAILLES
Téléphone Fixe 0130831616

Description

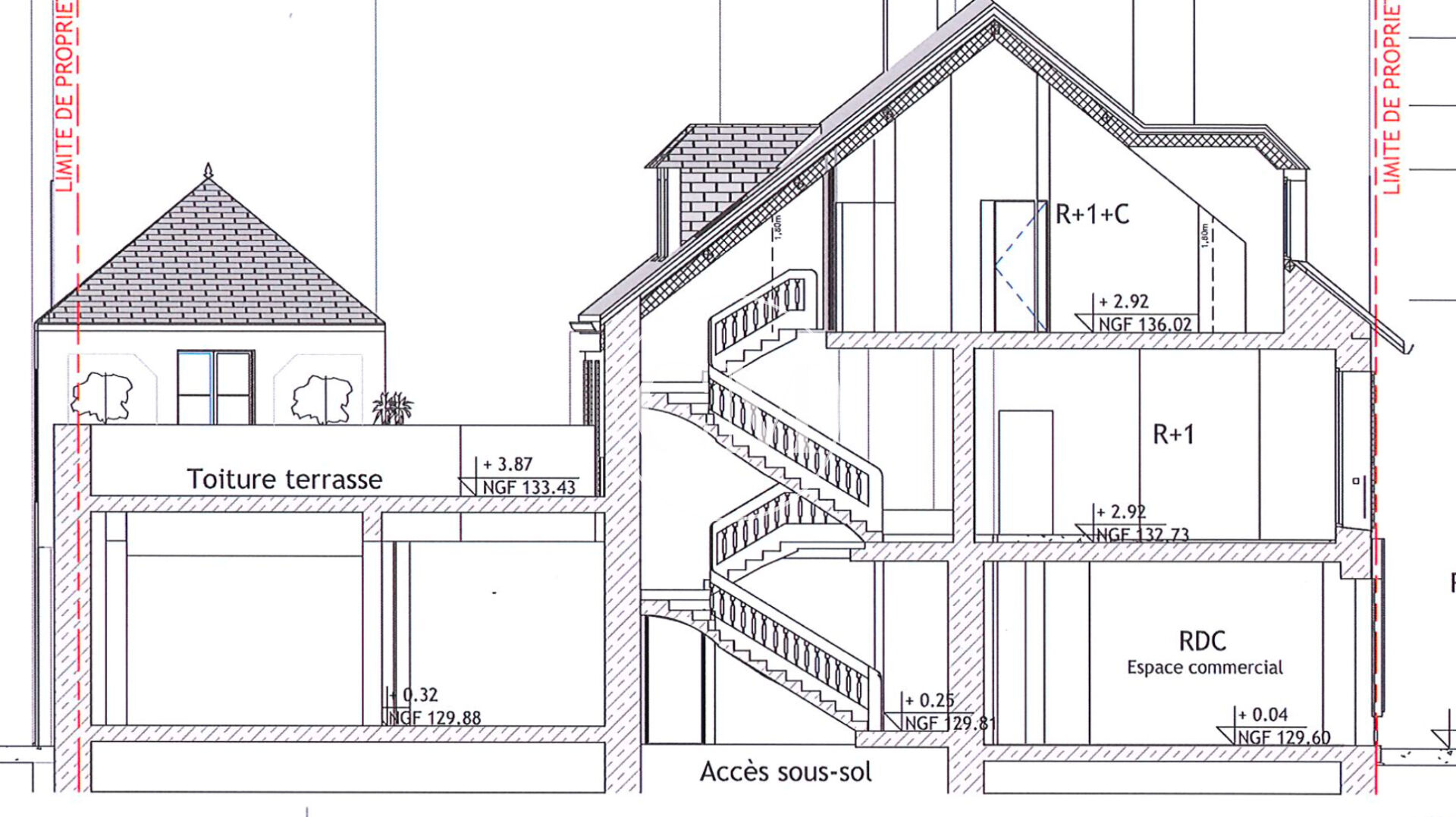
Le cabinet mansart vous propose : Immeuble de caractère à réinventer d'une superficie total de 670 m² et 478 m² de surface privative sur une adresse d'exception. Idéalement situé sur la très recherchée rue de Montreuil, au coeur d'un quartier. Le bien est composé : d'une vaste surface commerciale en rez-de-chaussée, offrant de multiples possibilités (Boutique, Boulangerie, restauration ou profession libérale) Surface commerciale : 270,23 m2 Deux grands appartements à créer aux étages, avec de beaux volumes, hauteurs sous plafond et potentiel architectural remarquable, parquet Cheminée et TERRASSE. Surface appartement de 106,86 m² avec terrasse de 62,67 m² au 1er étage et Surface appartement de 119,67 m² au 2? étage. IDÉAL ACHAT POUR INVESTISSEMENT LOYER ANNUEL POTENTIEL 150 000 euros

Les photos du bien

Les diagnostics


DPE
Energie non communiquée
GES
GES non communiqué