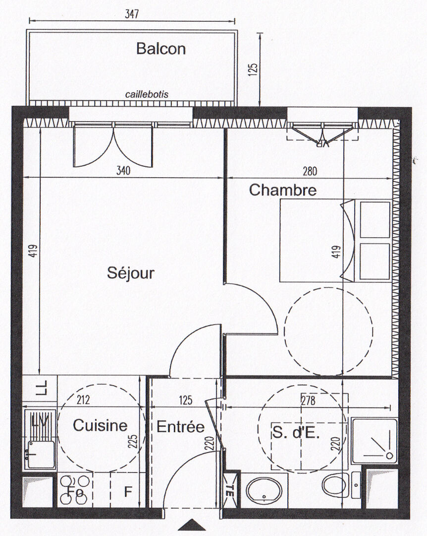
En vente Appartement 2 pièces 39 m2
Ville | COMBS LA VILLE |
Code postal | 77380 |
Type de bien | Appartement |
Surface | 39 m2 |
Nombre de pièces | 2 pièces |
Prix | 166 420,00 € |
Informations sur l'annonceur | |
---|---|
Annonce de professionnel |
|
Agence | La Vitrine de l'Immobilier Combs-la-ville Voir toutes les annonces |
Adresse | |
77380 COMBS LA VILLE | |
Téléphone Fixe | 0160601112 |
Portable | 0662007751 |
Description
Appartement 02 pièces 39,20 m² + Balcon 4,36 m² et parking privé en sous sol. Cuisine aménagée et équipée, spacieuse salle de bains, séjour-salon + cuisine " ouverte" soit 18 m² de convivialité, en exposition dominante " Ouest". Ascenseur, accès PMR, proche commerces et services, mais calme et lumineux. Vendu occupé, avec un loyer mensuel de 749 m², bon rapport locatif, pour ce logement de 2020, sans travaux à prévoir. ( sécurisé par une garantie paiement des loyers, un investissement à prioriser ! ) Chauffage collectif avec compteur de calories, Copropriété de 184 lots - dont 95 lots habitation. (Pas de procédure en cours). Charges annuelles : 1200 euros.
Les photos du bien
Les diagnostics
DPE
Bâtiment économe |
---|
![]() |
![]() |
![]() 116 |
![]() |
![]() |
![]() |
![]() |
Bâtiment énergivore |
en kWh.an/m².an |
GES
Faible émission de GES* |
---|
![]() |
![]() |
![]() |
![]() 22 |
![]() |
![]() |
![]() |
Forte émission de GES* |
* Gaz à effet de serre en KgeqCO2/m².an |