En vente Appartement 5 pièces 97 m2

Ville CRETEIL
Code postal 94000
Type de bien Appartement
Surface 97 m2
Nombre de pièces 5 pièces
Prix 327 000,00 €
Informations sur l'annonceur
Annonce de professionnel
Agence Stéphane Plaza Immobilier Créteil
Voir toutes les annonces
Adresse
94000 CRETEIL
Téléphone Fixe 0182392156
Portable 0786825525

Description

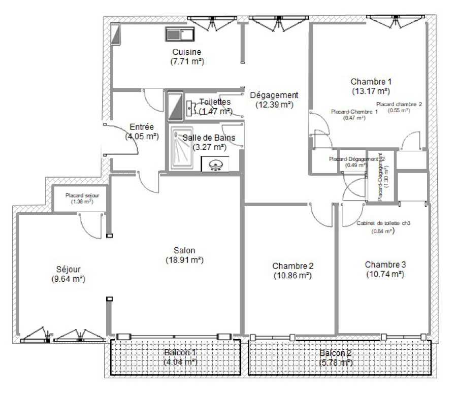
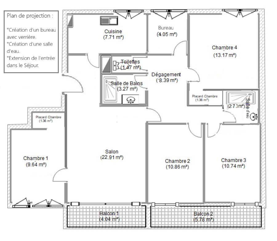
Situé au 2ème étage d'une copropriété calme et arborée, ce bien familiale en double exposition idéalement situé à 150m du village se compose d'une entrée, d'une cuisine équipée, d'un grand séjour avec balcon et d'une salle à manger (modulable en chambre avec penderie). La partie nuit s'organise autour d'un dégagement ,d'une salle d'eau, d'un WC indépendant, d'une suite parentale avec dressing et d'une salle d'eau privative (devis disponible à l'agence) et de deux autres grandes chambres avec balcon partager. Un bureau de 4m² avec verrière peut s'ajouter à la partie nuit. Une grande cave de 15m² et une place de stationnement en sous-sol complètent ce bien. Copropriété de 320 lots - dont 150 lots habitation. (Pas de procédure en cours). Charges annuelles : 4200 euros. Jean-Baptiste Tronca (EI) Agent Commercial - Numéro RSAC : 933 754 673 - CRETEIL.

Les photos du bien

Les diagnostics


DPE
Bâtiment économe
205
Bâtiment énergivore
en kWh.an/m².an
GES
Faible émission de GES*
55
Forte émission de GES*
* Gaz à effet de serre en KgeqCO2/m².an