En vente Appartement 3 pièces 68 m2
| Ville | DOURDAN |
| Code postal | 91410 |
| Type de bien | Appartement |
| Surface | 68 m2 |
| Nombre de pièces | 3 pièces |
| Prix | 197 000,00 € |
| Informations sur l'annonceur | |
|---|---|
| Annonce de professionnel |
|
| Agence | Pichet Immobilier Services - Pichet Immobilier Le Mans Voir toutes les annonces |
| Adresse | 63 Avenue du General Leclerc |
| 72000 Le Mans | |
| Téléphone Fixe | 0243140211 |
| Portable |
Description
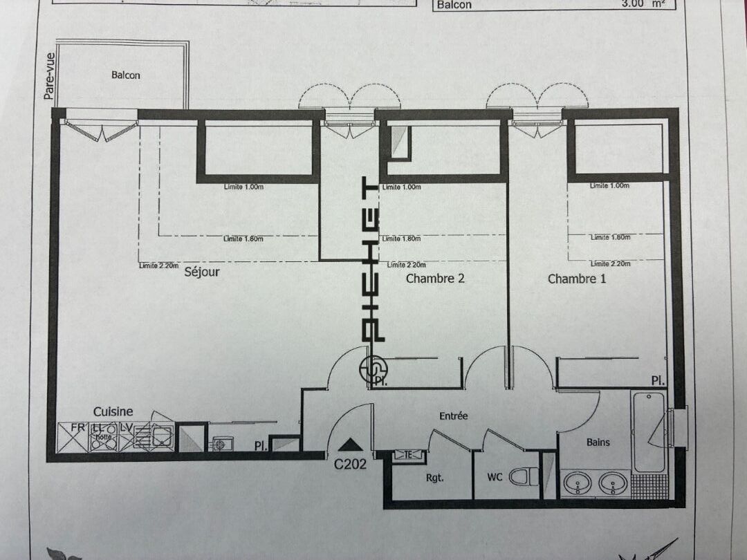
Dourdan - rue de l'Etang Dans secteur calme et résidence récente et sécurisée, bel appartement de type 3 avec balcon et 2 parking privé. Au 2ème et dernier étage, il comprend entrée, spacieux séjour avec coin cuisine, 2 chambres, salle de bains, un débarras et WC. A 10 minutes de la gare à pied et à 2 pas du centre de Dourdan, la résidence est de 2013. L'appartement dispose d'une chaudière gaz individuel. Un des 2 parkings est couvert. Eau et entretien annuel de la chaudière compris dans les charges de copropriété. Bonne note énergétique C A visiter ! « Les informations sur les risques auxquels ce bien est exposé sont disponibles sur le site Géorisques : www.georisques gouv.fr '. Copropriété de 115 lots - dont 43 lots habitation. (Pas de procédure en cours). Charges annuelles : 1959 euros.
Les photos du bien
Les diagnostics
| Bâtiment économe |
|---|
| |
| |
| 117 |
| |
| |
| |
| |
| Bâtiment énergivore |
| en kWh.an/m².an |
| Faible émission de GES* |
|---|
| |
| |
| |
| 23 |
| |
| |
| |
| Forte émission de GES* |
| * Gaz à effet de serre en KgeqCO2/m².an |