En vente Maison 3 pièces 70 m2
Ville | Montpellier |
Code postal | 34000 |
Type de bien | Maison |
Surface | 70 m2 |
Nombre de pièces | 3 pièces |
Prix | 261 900,00 € |
Informations sur l'annonceur | |
---|---|
Annonce de professionnel |
|
Agence | MADY IMMO 34 Voir toutes les annonces |
Adresse | |
34000 Montpellier | |
Téléphone Fixe | 0467798393 |
Description
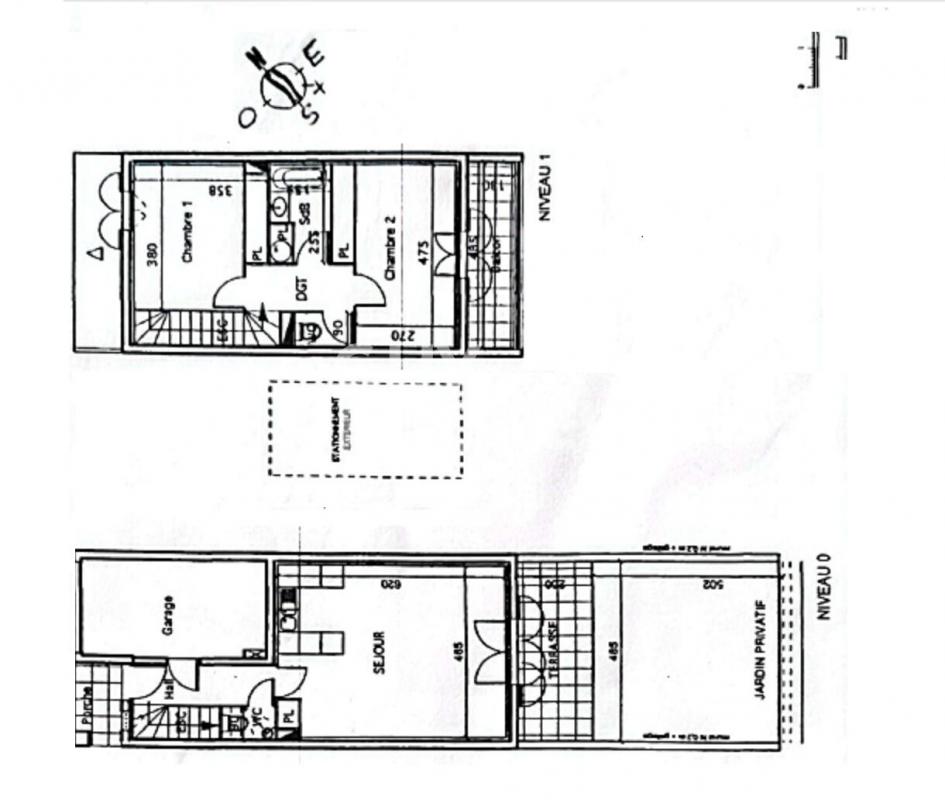
Votre agence GUY HOQUET Juvignac vous propose
une charmante maison située dans un quartier calme à
Juvignac.Au rez-de-chaussée, vous serez séduit par une entrée fonctionnelle avec rangements, un WC indépendant, ainsi qu'un bel espace de vie lumineux et climatisé comprenant cuisine ouverte et séjour, le tout prolongé par une terrasse conviviale donnant sur un jardin arboré et ombragé, idéal pour profiter des beaux jours en toute tranquillité.A l'étage, l'optimisation de l'espace a été pensée dans les moindres détails : un coin bureau, une chambre climatisée avec placard aménagé, une salle de bains moderne avec double vasque, un second WC, ainsi qu'une seconde chambre climatisée avec terrasse privative surplombant le jardin.Cette maison offre un cadre de vie agréable, lumineux et calme, avec en complément un garage fermé
attenant et une place de stationnement privative. A visiter sans tarder ! Contactez dès maintenant Sylvie LOPES au 06 11 80 10 13Entrepreneur individuel ? Agent Commercial (EI)RSAC : 529 337 560 ? CCI MontpellierRéf : 3461SLCopropriété de 49 lots (Pas de procédure en cours).Charges annuelles : 432
euros. Sylvie LOPES (EI) Agent Commercial - Numéro RSAC : 529337560 - MONTPELLIER.Les informations sur les risques auxquels ce bien est exposé sont disponibles sur le site Géorisques : www. georisques. gouv. fr
Les photos du bien
Les diagnostics
Bâtiment économe |
---|
![]() |
![]() |
![]() 106 |
![]() |
![]() |
![]() |
![]() |
Bâtiment énergivore |
en kWh.an/m².an |
Faible émission de GES* |
---|
![]() 3 |
![]() |
![]() |
![]() |
![]() |
![]() |
![]() |
Forte émission de GES* |
* Gaz à effet de serre en KgeqCO2/m².an |