En vente Maison 7 pièces 201 m2
Ville | LE PASQUIER |
Code postal | 39300 |
Type de bien | Maison |
Surface | 201 m2 |
Nombre de pièces | 7 pièces |
Prix | 395 000,00 € |
Informations sur l'annonceur | |
---|---|
Annonce de professionnel |
|
Agence | TOIT, VALEURS IMMOBILIER Champagnole Voir toutes les annonces |
Adresse | 15 avenue de la République |
39300 CHAMPAGNOLE | |
Téléphone Fixe | 0782052832 |
Portable | 0782052832 |
Description
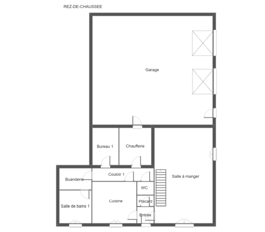
L'agence Toit et Valeurs vous propose à la vente sur la commune du Pasquier cette ancienne ferme rénovée pleine de charme située au calme, elle vous séduira par ses volumes généreux et ses nombreuses possibilités d'aménagements. D'une surface habitable confortable de 201m², elle offre : Au rez-de-chaussée : Hall d'entrée, cuisine aménagée et équipée, vaste pièce de vie de 47 m² exposée plein sud avec accès terrasse, une salle de bain, wc séparé, un bureau et lingerie. A l'étage : cinq chambres spacieuses, une salle d'eau / wc, mezzanine et grenier. Une grande terrasse idéale pour profiter des beaux jours ainsi qu'un jardin propice à la détente et aux jeux en extérieur. Côté annexes, les atouts ne manquent pas : Un garage de 135 m² (deux portes motorisées), parfait pour stationner plusieurs véhicules ou du stockage. Une grange de 200 m² (porte motorisée), offrant un fort potentiel pour un atelier, une extension de l'habitation, un projet professionnel (artisan ou autre ...) Cette propriété rare allie charme de l'ancien et confort moderne, dans un cadre paisible et lumineux. Un bien idéal pour les amoureux d'espace, de nature et d'authenticité. A visiter sans tarder !
Les photos du bien
Les diagnostics
Bâtiment économe |
---|
![]() |
![]() |
![]() |
![]() |
![]() 259 |
![]() |
![]() |
Bâtiment énergivore |
en kWh.an/m².an |
Faible émission de GES* |
---|
![]() |
![]() 7 |
![]() |
![]() |
![]() |
![]() |
![]() |
Forte émission de GES* |
* Gaz à effet de serre en KgeqCO2/m².an |