En vente Appartement 3 pièces 61 m2
Ville | PARIS |
Code postal | 75005 |
Type de bien | Appartement |
Surface | 61 m2 |
Nombre de pièces | 3 pièces |
Prix | 430 000,00 € |
Informations sur l'annonceur | |
---|---|
Annonce de professionnel |
|
Agence |
ALG IMMOBILIER - ALG IMMOBILIER
Voir toutes les annonces |
Adresse | 13, rue du Docteur Roux |
93360 Neuilly Plaisance | |
Téléphone Fixe | 0764074583 |
Portable |
Description
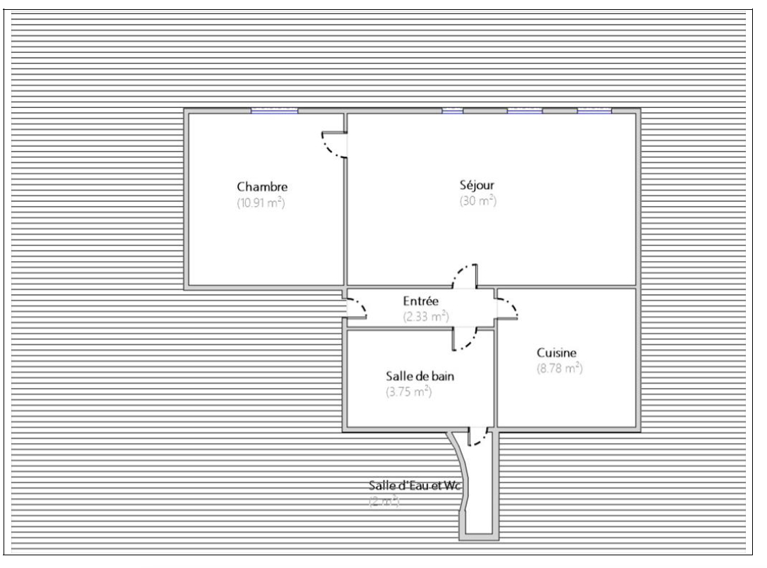
Exclusivité - Vente Nue propriété - Bouquet sans rente. Situé Bd Saint Germain, entre Cluny/La Sorbonne et Maubert Mutualité, vente de la nue-propriété d'un appartement 3 pièces de 57,77m2 (Loi Carrez) dans un immeuble fin XIXème dont la façade vient d'être entièrement ravalée. Ce bien traversant est au 6ème et dernier étage sans vis à vis accessible par ascenseur. Il se compose d'une entrée qui dessert un vaste séjour de 30m2 exposé Sud/Ouest ouvrant par trois portes fenêtres en enfilade donnant accès à trois balcons avec vue Tour Eiffel, cheminée en marbre. une chambre avec placards et balcon, une cuisine indépendante avec une belle vue sur Notre Dame de Paris et une salle de bains avec baignoire, douche et WC. Le Vendeur âgé de 63 ans garde l'usufruit de son appartement. Bouquet : 400 000 euros Copropriété de 45 lots - dont 18 lots habitation. (Pas de procédure en cours). Charges annuelles : 1640 euros.
Les photos du bien
Les diagnostics
Bâtiment économe |
---|
![]() |
![]() |
![]() |
![]() |
![]() 298 |
![]() |
![]() |
Bâtiment énergivore |
en kWh.an/m².an |
Faible émission de GES* |
---|
![]() |
![]() |
![]() |
![]() |
![]() |
![]() 65 |
![]() |
Forte émission de GES* |
* Gaz à effet de serre en KgeqCO2/m².an |