En location Appartement 4 pièces 76 m2
Ville | SAINT MALO |
Code postal | 35400 |
Type de bien | Appartement |
Surface | 76 m2 |
Nombre de pièces | 4 pièces |
Prix | 1 155,00 € |
Informations sur l'annonceur | |
---|---|
Annonce de professionnel |
|
Agence | AGENCE BIZEUL ST MALO Voir toutes les annonces |
Adresse | 74 chaussée du Sillon |
35400 SAINT MALO | |
Téléphone Fixe | 0299200125 |
Description
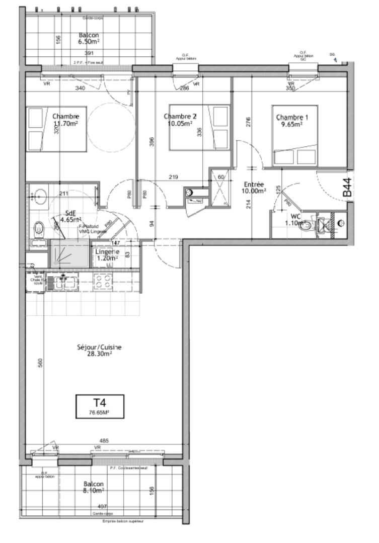
L'agence BIZEUL IMMOBILIER vous propose à la location un appartement T4 situé au 4? étage d'une résidence récente et sécurisée, idéalement placée à seulement 1 km de l'intra-muros et de la plage du Sillon. L'appartement dispose d'une entrée avec placard, un wc avec lave mains, une buanderie, une pièce de vie avec accès un balcon, une cuisine ouverte aménagée et équipée (meubles hauts et bas, plaque de cuisson, micro-ondes, hotte et four), trois chambres dont une avec balcon, une salle d'eau avec WC. Une place de stationnement en sous-sol complète ce bien. Référence : HERMINE-B44 Disponible : mi-décembre Loyer : 1155 euros + 85 euros de charges (Entretien des parties communes, Taxe d'ordures ménagères et entretien de la chaudière) : 1240 euros. VISITE UNIQUEMENT UR DOSSIER DE CANDIDATURE COMPLET location @ bizeulimmobilier . com
Les photos du bien
Les diagnostics
Bâtiment économe |
---|
![]() |
![]() 61 |
![]() |
![]() |
![]() |
![]() |
![]() |
Bâtiment énergivore |
en kWh.an/m².an |
Faible émission de GES* |
---|
![]() |
![]() 10 |
![]() |
![]() |
![]() |
![]() |
![]() |
Forte émission de GES* |
* Gaz à effet de serre en KgeqCO2/m².an |